19,980万円
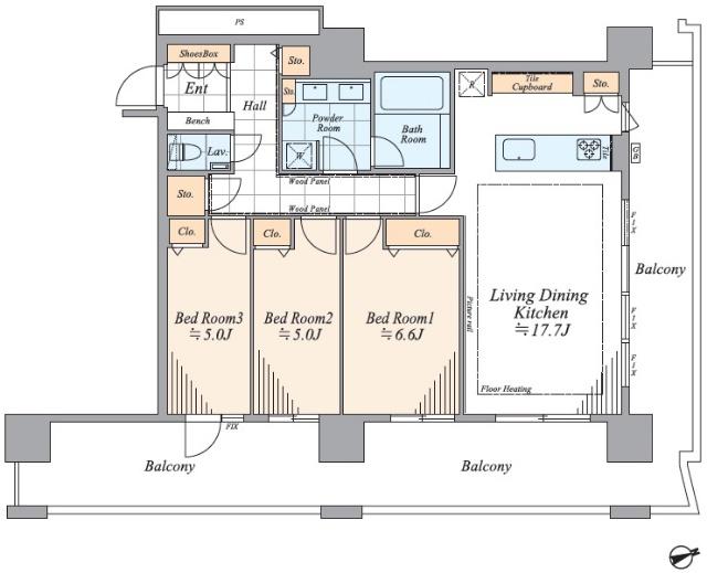
3LDK
種別 マンション
専有面積 82.90㎡(壁芯)
おすすめ
ポイント
専有面積約82㎡の収納豊富な3LDK!2匹までペット飼育可!
新規リノベーション済み(2025年9月完了)
総戸数325戸のビックコミュニティ、24時間有人管理
ゲストルーム・パーティールームなど充実の共用施設
| 築年月 | 2005年11月 |
|---|---|
| 構造 | 鉄筋コンクリート造 |
| 所在階 | 地下2階・地上32階建ての15階 |
| 総戸数 | 325戸 |
| 向き | 南東 |
| バルコニー面積 | 42.32㎡ |
| 駐車場 | - |
| 施工会社 | 三井住友建設(株) |
| 管理会社 | 三井不動産レジデンシャルサービス㈱ |
| 管理形態 | 全部委託(日勤) |
| 権利 | 所有権 |
| 借地権 | - |
| 現況 | 空室(入居歴有) |
| 引渡時期 | 即時 |
| 引渡条件 | |
| 管理費 | 23,790円/月 |
| 修繕積立金 | 13,260円/月 |
| 取引態様 | 媒介 |
| 管理コード | CS400187 |
設備・特記
《設備》:陽当り良好/リノベーション/床暖房/ペット相談可/室内洗濯機置場/LDK15畳以上/2面採光/クローゼット/全居室収納/温水洗浄便座/独立型キッチン/食器洗浄乾燥機/システムキッチン/浴室乾燥機/エレベータ/宅配BOX/バルコニー2面以上/24時間有人管理/天井高2.5M以上/角部屋
《物件の特徴》:-
備考
《その他》:施工会社(三井住友建設(株)) / 管理会社(三井不動産レジデンシャルサービス㈱) / 用途地域:準工業地域 / 地勢:平坦 / 国土法届出:不要
※詳細については、Webサイトにてご確認ください。現状と異なる場合は、現状を優先させていただきます。
※取引態様の欄に「媒介」と表示された物件は「仲介物件」です。ご成約の際には仲介手数料を申し受けます。
情報更新日|2025年12月13日
次回更新予定|2025年12月27日