7,780万円
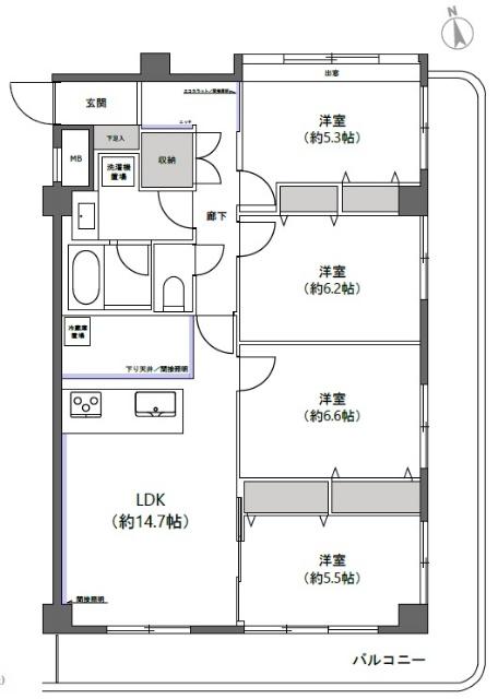
4LDK
種別 マンション
専有面積 84.37㎡(壁芯)
おすすめ
ポイント
南・東の角住戸、L字バルコニー付き4LDK!
新規リフォーム(2025年11月完了)
2駅2路線利用可能な好立地
夜間オートロック、敷地内児童センター有、管理体制良好
| 築年月 | 1981年2月 |
|---|---|
| 構造 | 鉄筋コンクリート造 |
| 所在階 | 7階建ての2階 |
| 総戸数 | 92戸 |
| 向き | 南 |
| バルコニー面積 | 21.47㎡ |
| 駐車場 | - |
| 施工会社 | (株)間組 |
| 管理会社 | 朝日管理(株) |
| 管理形態 | 全部委託(日勤) |
| 権利 | 所有権 |
| 借地権 | - |
| 現況 | 空室(入居歴有) |
| 引渡時期 | 即時 |
| 引渡条件 | |
| 管理費 | 15,800円/月 |
| 修繕積立金 | 16,900円/月 |
| 取引態様 | 媒介 |
| 管理コード | CS400669 |
設備・特記
《設備》:陽当り良好/内装リフォーム/室内洗濯機置場/クローゼット/全居室収納/食器洗浄乾燥機/システムキッチン/追い焚き風呂/浴室乾燥機/バルコニー/エレベータ/オートロック/バルコニー2面以上/ペット不可/角部屋
《物件の特徴》:明るい南西向きバルコニーの3LDKマンションです!!
備考
《その他》:施工会社((株)間組) / 管理会社(朝日管理(株)) / 国土法届出:不要
※詳細については、Webサイトにてご確認ください。現状と異なる場合は、現状を優先させていただきます。
※取引態様の欄に「媒介」と表示された物件は「仲介物件」です。ご成約の際には仲介手数料を申し受けます。
情報更新日|2026年1月13日
次回更新予定|2026年1月30日