13,980万円
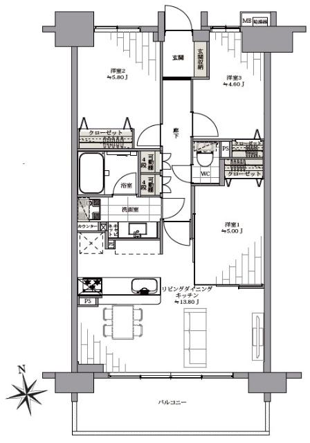
3LDK
種別 マンション
専有面積 70.36㎡(壁芯)
おすすめ
ポイント
再開発が進む「大井町駅」徒歩14分☆南向きにつき陽当り良好!
新規リフォーム(2026年4月末完成予定)
ペット飼育可(一住戸二匹まで)
安心のオートロック・荷物の受け取りに便利な宅配ボックス完備
| 築年月 | 2012年8月 |
|---|---|
| 構造 | 鉄筋コンクリート造 |
| 所在階 | 13階建ての7階 |
| 総戸数 | 150戸 |
| 向き | 南 |
| バルコニー面積 | 10.80㎡ |
| 駐車場 | - |
| 施工会社 | 東亜建設工業(株) |
| 管理会社 | (株)大京アステージ |
| 管理形態 | 全部委託(日勤) |
| 権利 | 所有権 |
| 借地権 | - |
| 現況 | 空室(入居歴有) |
| 引渡時期 | 相談 |
| 引渡条件 | |
| 管理費 | 10,800円/月 |
| 修繕積立金 | 11,000円/月 |
| 取引態様 | 媒介 |
| 管理コード | CS400705 |
設備・特記
《設備》:ペット相談可/南向き/内装リフォーム/外観タイル張り/室内洗濯機置場/インターネット対応/クローゼット/浄水器/全居室収納/食器洗浄乾燥機/システムキッチン/追い焚き風呂/浴室乾燥機/バルコニー/エレベータ/宅配BOX/TVモニター付きインターホン/オートロック/南面バルコニー
《物件の特徴》:-
備考
《その他月額費用》:共同施設等共益費:161円/有線放送等聴取料:121円
《その他》:施工会社(東亜建設工業(株)) / 管理会社((株)大京アステージ) / 国土法届出:不要
※詳細については、Webサイトにてご確認ください。現状と異なる場合は、現状を優先させていただきます。
※取引態様の欄に「媒介」と表示された物件は「仲介物件」です。ご成約の際には仲介手数料を申し受けます。
情報更新日|2026年3月27日
次回更新予定|2026年4月13日