28,998万円
3LDK
種別 マンション
専有面積 230.54㎡(壁芯)
おすすめ
ポイント
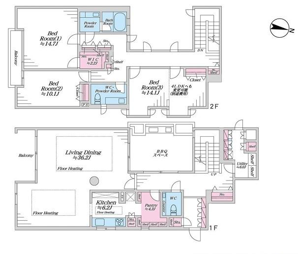
専有面積230㎡の高級タウンハウス!専用BBQスペース付き!
LDK約36帖のLDK!全居室が10帖以上のゆとりある空間♪
プライベートBBQスペース付き!周囲の目を気にせず楽しめます♪
◆平置き専用駐車場付き(月額17000円)◆ペット飼育可能
| 築年月 | 1988年2月 |
|---|---|
| 構造 | 鉄筋コンクリート造 |
| 所在階 | 地下1階・地上2階建ての1階~2階 |
| 総戸数 | 3戸 |
| 向き | 南 |
| バルコニー面積 | 4.20㎡ |
| 駐車場 | 駐車場有り 17,000円/月 |
| 施工会社 | - |
| 管理会社 | - |
| 管理形態 | 全部委託(日勤) |
| 権利 | 所有権 |
| 借地権 | - |
| 現況 | 空室(入居歴有) |
| 引渡時期 | 相談 |
| 引渡条件 | |
| 管理費 | 57,630円/月 |
| 修繕積立金 | 26,740円/月 |
| 取引態様 | 媒介 |
| 管理コード | DC400403 |
設備・特記
《設備》:陽当り良好/リノベーション/床暖房/内装リフォーム/外観タイル張り/室内洗濯機置場/クローゼット/テラス/システムキッチン/LDK20畳以上/バルコニー/平面駐車場/最上階/バルコニー2面以上/角部屋/隣接建物距離2m以上/エアコン/ペット相談可/南向き/三面採光/閑静な住宅街/パントリー/全居室収納/温水洗浄便座/バス1坪以上/ウォークインクローゼット/全居室フローリング/オートロック
《物件の特徴》:-
備考
《その他》:国土法届出:不要
※詳細については、Webサイトにてご確認ください。現状と異なる場合は、現状を優先させていただきます。
※取引態様の欄に「媒介」と表示された物件は「仲介物件」です。ご成約の際には仲介手数料を申し受けます。
情報更新日|2025年12月15日
次回更新予定|2026年1月1日