9,980万円
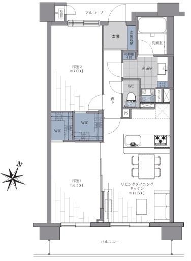
2LDK
種別 マンション
専有面積 60.12㎡(壁芯)
おすすめ
ポイント
商業施設が豊富な桜新町駅から徒歩11分♪便利で快適な暮らし
ペット飼育可能♪そして南東向き明るいリビングで心地よい毎日を♪
60㎡超のゆとりのある2LDK♪可動間仕切りでアレンジ自在♪
リノベ済みのきれいな室内で新生活を応援!!
| 築年月 | 2004年1月 |
|---|---|
| 構造 | 鉄筋コンクリート造 |
| 所在階 | 10階建ての7階 |
| 総戸数 | - |
| 向き | 南東 |
| バルコニー面積 | 11.40㎡ |
| 駐車場 | 駐車場有り 26,000円/月 |
| 施工会社 | - |
| 管理会社 | - |
| 管理形態 | 全部委託(日勤) |
| 権利 | 所有権 |
| 借地権 | - |
| 現況 | 空室(入居歴有) |
| 引渡時期 | 相談 |
| 引渡条件 | |
| 管理費 | 12,270円/月 |
| 修繕積立金 | 23,300円/月 |
| 取引態様 | 媒介 |
| 管理コード | DC400438 |
設備・特記
《設備》:陽当り良好/床暖房/内装リフォーム/外観タイル張り/室内洗濯機置場/小学校徒歩10分以内/カウンターキッチン/クローゼット/浴室暖房/システムキッチン/追い焚き風呂/3口コンロ/浴室乾燥機/バルコニー/常時ゴミ出し可能/閑静な住宅街/可動間仕切り/浄水器/全居室収納/温水洗浄便座/食器洗浄乾燥機/ウォークインクローゼット/エレベータ/全居室フローリング/モニタ付オートロック/宅配BOX/給湯/TVモニター付きインターホン/オートロック
《物件の特徴》:-
備考
《その他》:国土法届出:不要
※詳細については、Webサイトにてご確認ください。現状と異なる場合は、現状を優先させていただきます。
※取引態様の欄に「媒介」と表示された物件は「仲介物件」です。ご成約の際には仲介手数料を申し受けます。
情報更新日|2026年2月18日
次回更新予定|2026年3月4日