11,000万円
表面利回り:約3.27%
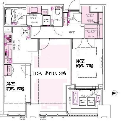
2LDK
種別 投資マンション
専有面積 69.18㎡(壁芯)
おすすめ
ポイント
豊洲再開発プロジェクトのシンボルタワー
35階南向きダイレクトスカイビュー・湾岸エリアを一望
住友不動産旧分譲+竹中工務店設計施工による制震構造
高速リムジンバスにて羽田へ20分、成田へ1時間の快適アクセス
| 築年月 | 2009年12月 |
|---|---|
| 構造 | 鉄筋コンクリート造 |
| 所在階 | 地下1階・地上44階建ての9階 |
| 総戸数 | 850戸 |
| 向き | 東 |
| バルコニー面積 | 5.68㎡ |
| 駐車場 | 駐車場有り 26,000円/月 |
| 施工会社 | 竹中工務店 |
| 管理会社 | 住友不動産建物サービス |
| 管理形態 | 全部委託(日勤) |
| 権利 | 所有権 |
| 借地権 | - |
| 現況 | 賃貸中 |
| 引渡時期 | 即時 |
| 引渡条件 | オーナーチェンジ |
| 管理費 | 19,507円/月 |
| 修繕積立金 | 17,130円/月 |
| 取引態様 | 媒介 |
| 管理コード | DH400023 |
設備・特記
《設備》:都市ガス/制震構造/BSアンテナ/床暖房/CSアンテナ/ペット相談可/インターネット対応/光回線/クローゼット/洗髪洗面化粧台/ペット用施設/システムキッチン/追い焚き風呂/浴室乾燥機/給湯/TVモニター付きインターホン/バルコニー2面以上/オートロック
《物件の特徴》:豊洲再開発プロジェクトのシンボルタワー
備考
《満室時想定賃料》:約360万円(年間)
《その他》:施工会社(竹中工務店) / 管理会社(住友不動産建物サービス) / 販売戸数:1戸 / 管理組合:あり / 備考:家賃保証:あり / 用途地域:工業地域 / 地勢:平坦 / 国土法届出:不要
※詳細については、Webサイトにてご確認ください。現状と異なる場合は、現状を優先させていただきます。
※取引態様の欄に「媒介」と表示された物件は「仲介物件」です。ご成約の際には仲介手数料を申し受けます。
情報更新日|2025年12月6日
次回更新予定|2025年12月20日