6,900万円
表面利回り:約3.94%
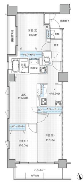
3LDK
種別 投資マンション
専有面積 70.01㎡(壁芯)
おすすめ
ポイント
| 築年月 | 2014年8月 |
|---|---|
| 構造 | 鉄筋コンクリート造 |
| 所在階 | 12階建ての5階 |
| 総戸数 | 27戸 |
| 向き | 南西 |
| バルコニー面積 | 7.20㎡ |
| 駐車場 | - |
| 施工会社 | 多田建設(株) |
| 管理会社 | (株)東急コミュニティー |
| 管理形態 | 全部委託(日勤) |
| 権利 | 所有権 |
| 借地権 | - |
| 現況 | 賃貸中 |
| 引渡時期 | 相談 |
| 引渡条件 | オーナーチェンジ |
| 管理費 | 15,540円/月 |
| 修繕積立金 | 15,752円/月 |
| 取引態様 | 媒介 |
| 管理コード | DH400026 |
設備・特記
《設備》:CATV/陽当り良好/BSアンテナ/CSアンテナ/CATVインターネット/バリアフリー/外観タイル張り/室内洗濯機置場/インターネット対応/複層ガラス/カウンターキッチン/クローゼット/浴室暖房/システムキッチン/オートバス/追い焚き風呂/3口コンロ/浴室乾燥機/バルコニー/24時間換気システム/角部屋/隣接建物距離2m以上/都市ガス/エアコン/常時ゴミ出し可能/閑静な住宅街/2面採光/全居室収納/温水洗浄便座/エレベータ/全居室フローリング/モニタ付オートロック/宅配BOX/給湯/TVモニター付きインターホン/オートロック/防犯カメラ/天井高2.5M以上
《物件の特徴》:-
備考
《満室時想定賃料》:約272.4万円(年間)
《その他》:施工会社(多田建設(株)) / 管理会社((株)東急コミュニティー) / 販売戸数:1戸 / 用途地域:商業地域 / 地勢:平坦 / 国土法届出:不要
※詳細については、Webサイトにてご確認ください。現状と異なる場合は、現状を優先させていただきます。
※取引態様の欄に「媒介」と表示された物件は「仲介物件」です。ご成約の際には仲介手数料を申し受けます。
情報更新日|2026年2月6日
次回更新予定|2026年2月21日