3,630万円
3LDK
種別 戸建て
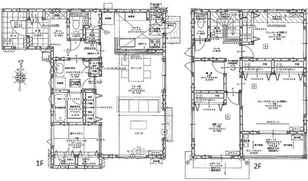
建物面積 103.91㎡(壁芯)
おすすめ
ポイント
外構・カップボード設置済!追加工事不要のオールインワン物件
細部へのこだわりが光る。機能性とデザインを両立
3LDKにプラスαのゆとりを。書斎で叶える暮らしに最適な家
| 築年月 | 2025年7月 |
|---|---|
| 構造 | 木造 |
| 階数 | 2階建て |
| 土地面積 | 168.98㎡ (51.11坪) |
| 駐車スペース | 駐車場あり( 2台) |
| 都市計画 | 市街化区域 |
| 用途地域 | 第一種低層住居専用地域 |
| 建蔽率/容積率 | 50% / 100% |
| 地目 | 宅地 |
| 区画整理 | - |
| 接道 | 西側4.6m公道に接道 |
| 私道 | なし |
| 権利 | 所有権 |
| 借地権 | - |
| 現況 | 空室(入居歴有) |
| 引渡時期 | 相談 |
| 引渡条件 | |
| 取引態様 | 媒介 |
| 管理コード | DY400057 |
設備・特記
《設備》:トイレ2ヶ所/陽当り良好/食器洗浄乾燥機/システムキッチン/床下収納/クローゼット/LDK18畳以上/駐車場2台分/全居室収納/TVモニター付きインターホン
《物件の特徴》:-
備考
《その他》:施工会社((株)トータテハウジング) / 販売戸数:1戸 / 地勢:高台 / 国土法届出:不要
《建築確認番号》:第R06認広建セ02673号
※詳細については、Webサイトにてご確認ください。現状と異なる場合は、現状を優先させていただきます。
※取引態様の欄に「媒介」と表示された物件は「仲介物件」です。ご成約の際には仲介手数料を申し受けます。
情報更新日|2026年4月24日
次回更新予定|2026年5月8日