2,100万円
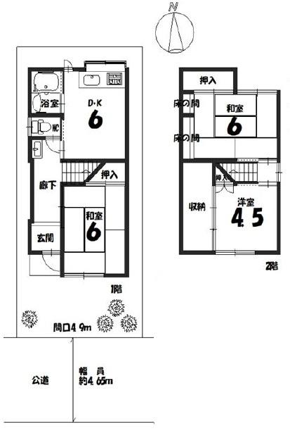
3DK
種別 戸建て
建物面積 56.73㎡(壁芯)
おすすめ
ポイント
吹田市 竹谷町 中古戸建!
阪急千里線「千里山」駅バス8分「総合運動場前」バス停徒歩2分!
南向き!陽当たり・通風良好!
室内大変キレイにお使いです!
| 築年月 | 1977年5月 |
|---|---|
| 構造 | 木造 |
| 階数 | 2階建て |
| 土地面積 | 56.33㎡ (17.03坪) |
| 駐車スペース | - |
| 都市計画 | 市街化区域 |
| 用途地域 | 第一種中高層住居専用地域 |
| 建蔽率/容積率 | 60% / 200% |
| 地目 | 宅地 |
| 区画整理 | - |
| 接道 | 南側4.6m公道に4.9m接道 |
| 私道 | なし |
| 権利 | 所有権 |
| 借地権 | - |
| 現況 | 空室(入居歴有) |
| 引渡時期 | 相談 |
| 引渡条件 | |
| 取引態様 | 媒介 |
| 管理コード | DZ09832 |
設備・特記
《設備》:都市ガス/上水道/下水道/クローゼット
《物件の特徴》:-
備考
《その他制限》:16m第3種高度地区、景観計画区域、宅地規制区域、法22条地域
※詳細については、Webサイトにてご確認ください。現状と異なる場合は、現状を優先させていただきます。
※取引態様の欄に「媒介」と表示された物件は「仲介物件」です。ご成約の際には仲介手数料を申し受けます。
情報更新日|2026年3月15日
次回更新予定|2026年4月10日