3,780万円
3LDK
種別 戸建て
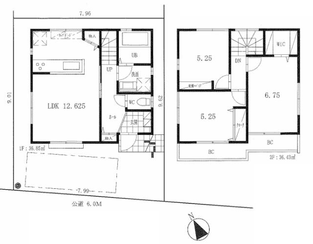
建物面積 73.28㎡(壁芯)
おすすめ
ポイント
通勤に便利な2路線2駅利用可能な立地。
子育て環境良好な区画整理地内。万願寺駅まで平坦で徒歩10分以内
物件の説明も最適なローンもプロが丁寧にご案内。
| 築年月 | 2026年8月 |
|---|---|
| 構造 | 木造 |
| 階数 | 2階建て |
| 土地面積 | 74.29㎡ (22.47坪) |
| 駐車スペース | 駐車場あり( 1台) |
| 都市計画 | 市街化区域 |
| 用途地域 | 第一種低層住居専用地域 |
| 建蔽率/容積率 | 50% / 100% |
| 地目 | 宅地 |
| 区画整理 | - |
| 接道 | 南西側6.0m公道に7.9m接道 |
| 私道 | なし |
| 権利 | 所有権 |
| 借地権 | - |
| 現況 | 未完成 |
| 引渡時期 | 相談 |
| 引渡条件 | |
| 取引態様 | 媒介 |
| 管理コード | EB400165 |
設備・特記
《設備》:陽当り良好/上水道/南道路/前道6m以上/複層ガラス/下水道/カウンターキッチン/クローゼット/浴室暖房/システムキッチン/オートバス/追い焚き風呂/3口コンロ/浴室乾燥機/バルコニー/24時間換気システム/都市ガス/区画整理地内/整形地/閑静な住宅街/パントリー/浄水器/温水洗浄便座/洗髪洗面化粧台/食器洗浄乾燥機/床下収納/バス1坪以上/ウォークインクローゼット/全居室フローリング/TVモニター付きインターホン
《物件の特徴》:通勤に便利な2路線2駅利用可能な立地。
備考
《その他制限》:景観法、航空法、地区計画
《その他》:販売戸数:1戸 / 地勢:平坦 / 国土法届出:不要
《建築確認番号》:日ま建確第4号
※詳細については、Webサイトにてご確認ください。現状と異なる場合は、現状を優先させていただきます。
※取引態様の欄に「媒介」と表示された物件は「仲介物件」です。ご成約の際には仲介手数料を申し受けます。
情報更新日|2026年4月16日
次回更新予定|2026年5月2日