700万円
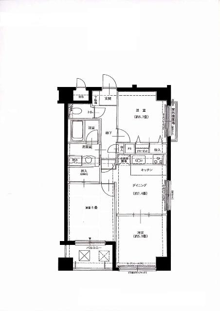
3DK
種別 マンション
専有面積 57.75㎡(壁芯)
おすすめ
ポイント
周辺施設充実で生活便利
橘小学校まで徒歩約4分 通学安心
4階角部屋で日当り良好
ヨークタウン堤下まで徒歩約2分
| 築年月 | 1995年1月 |
|---|---|
| 構造 | 鉄筋コンクリート造 |
| 所在階 | 8階建ての4階 |
| 総戸数 | 13戸 |
| 向き | 南 |
| バルコニー面積 | - |
| 駐車場 | - |
| 施工会社 | - |
| 管理会社 | - |
| 管理形態 | 全部委託(巡回) |
| 権利 | 所有権 |
| 借地権 | - |
| 現況 | 空室(入居歴有) |
| 引渡時期 | 相談 |
| 引渡条件 | 現況渡し/相談 |
| 管理費 | 16,230円/月 |
| 修繕積立金 | 21,370円/月 |
| 取引態様 | 媒介 |
| 管理コード | GB400105 |
設備・特記
《設備》:陽当り良好/BSアンテナ/外観タイル張り/インターネット対応/小学校徒歩10分以内/クローゼット/システムキッチン/3口コンロ/バルコニー/照明器具/角部屋/都市ガス/エアコン/区画整理地内/南向き/閑静な住宅街/温水洗浄便座/洗髪洗面化粧台/エレベータ/全居室フローリング/モニタ付オートロック/宅配BOX/給湯/オートロック/防犯カメラ
《物件の特徴》:-
備考
《その他》:販売戸数:1戸 / 用途地域:商業地域 / 地勢:平坦 / 国土法届出:不要
※詳細については、Webサイトにてご確認ください。現状と異なる場合は、現状を優先させていただきます。
※取引態様の欄に「媒介」と表示された物件は「仲介物件」です。ご成約の際には仲介手数料を申し受けます。
情報更新日|2026年2月24日
次回更新予定|2026年3月10日