2,490万円
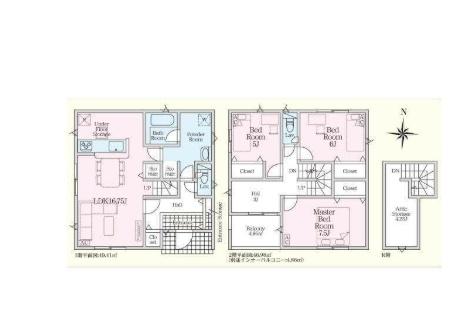
3SLDK
種別 戸建て
建物面積 96.39㎡(壁芯)
おすすめ
ポイント
■駐車スペース3台分■耐震等級3■住宅性能評価物件■
■クレイドルガーデンシリーズ■設備充実の新築■
■納戸・テレワークルームなど■
【鵜沼第一小学校 1050m】【鵜沼中学校 1280m】
| 築年月 | 2026年4月 |
|---|---|
| 構造 | 木造 |
| 階数 | 2階建て |
| 土地面積 | 156.60㎡ (47.37坪) |
| 駐車スペース | 駐車場あり( 3台) |
| 都市計画 | 市街化区域 |
| 用途地域 | 第一種住居地域 |
| 建蔽率/容積率 | 60% / 200% |
| 地目 | 宅地 |
| 区画整理 | - |
| 接道 | 南側6.8m公道に9.0m接道 |
| 私道 | なし |
| 権利 | 所有権 |
| 借地権 | - |
| 現況 | 未完成 |
| 引渡時期 | 2026年4月下旬予定 |
| 引渡条件 | |
| 取引態様 | 媒介 |
| 管理コード | GE400211 |
設備・特記
《設備》:プロパンガス/上水道/電気/設計住宅性能評価書/下水道/カウンターキッチン/クローゼット/温水洗浄便座/洗髪洗面化粧台/システムキッチン/床下収納/追い焚き風呂/浴室乾燥機/駐車場2台分/TVモニター付きインターホン
《物件の特徴》:■駐車スペース3台分■耐震等級3■住宅性能評価物件■
備考
《建築確認番号》:HPA-26-00714-1
※詳細については、Webサイトにてご確認ください。現状と異なる場合は、現状を優先させていただきます。
※取引態様の欄に「媒介」と表示された物件は「仲介物件」です。ご成約の際には仲介手数料を申し受けます。
情報更新日|2026年2月27日
次回更新予定|2026年3月14日