4,390万円
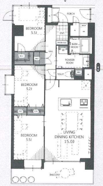
3LDK
種別 マンション
専有面積 74.13㎡(壁芯)
おすすめ
ポイント
令和7年12月新規リノベーション3LDKの綺麗なお家です☆彡
南向き角部屋なので陽当たりも勿論のこと、風通しも良好です♪
全部屋収納有り!家族の荷物や洋服も大容量収納でスッキリ☆彡
15帖のリビングスペースは広々としてご家族皆で憩いの場に◎
| 築年月 | 1991年8月 |
|---|---|
| 構造 | 鉄筋コンクリート造 |
| 所在階 | 8階建ての4階 |
| 総戸数 | 53戸 |
| 向き | 南西 |
| バルコニー面積 | 9.75㎡ |
| 駐車場 | 駐車場有り 18,000円/月 |
| 施工会社 | (株)熊谷組 |
| 管理会社 | 三菱地所コミュニティ株式会社 |
| 管理形態 | 全部委託(日勤) |
| 権利 | 所有権 |
| 借地権 | - |
| 現況 | 空室(入居歴有) |
| 引渡時期 | 相談 |
| 引渡条件 | |
| 管理費 | 12,590円/月 |
| 修繕積立金 | 25,730円/月 |
| 取引態様 | 媒介 |
| 管理コード | HF402427 |
設備・特記
《設備》:陽当り良好/リノベーション/南向き/室内洗濯機置場/LDK15畳以上/閑静な住宅街/小学校徒歩10分以内/カウンターキッチン/クローゼット/全居室収納/温水洗浄便座/洗髪洗面化粧台/システムキッチン/3口コンロ/ウォークインクローゼット/バルコニー/エレベータ/全居室フローリング/オートロック/ワイドバルコニー/南面バルコニー/角部屋
《物件の特徴》:令和7年12月新規リノベーション3LDKの綺麗なお家です☆彡
備考
《その他》:施工会社((株)熊谷組) / 管理会社(三菱地所コミュニティ株式会社) / 販売戸数:1戸 / 備考:総武中央線「新小岩駅」徒歩22分の閑静な住宅街にある新規リノベーション物件!小学校、中学校ともに徒歩6分の近さでお子様の通学も安心です◎スーパー、コンビニが10分圏内で周辺環境の利便性◎☆お客様が満足できる物件が見つかるまで全力でサポートさせて頂きます☆ / 用途地域:準工業地域 / 国土法届出:不要
※詳細については、Webサイトにてご確認ください。現状と異なる場合は、現状を優先させていただきます。
※取引態様の欄に「媒介」と表示された物件は「仲介物件」です。ご成約の際には仲介手数料を申し受けます。
情報更新日|2025年11月15日
次回更新予定|2025年12月10日