6,290万円
4LDK
種別 戸建て
建物面積 102.88㎡(壁芯)
おすすめ
ポイント
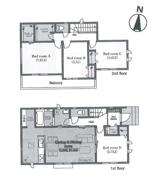
角地×南向きで暖かい陽射しと心地よい風を取り込めます☆彡
WIC等全居室収納完備◎日常生活に大切な収納力が揃っています!
視界の広い対面キッチン♪まとまった水廻りは家事がしやすいです。
駐車スペース2台分!来客時やセカンドカーにも重宝しますね♪
| 築年月 | 2026年1月 |
|---|---|
| 構造 | 木造 |
| 階数 | 2階建て |
| 土地面積 | 136.26㎡ (41.21坪) |
| 駐車スペース | 駐車場あり( 2台) |
| 都市計画 | 市街化区域 |
| 用途地域 | 第一種住居地域 |
| 建蔽率/容積率 | 60% / 200% |
| 地目 | 宅地 |
| 区画整理 | - |
| 接道 | |
| 私道 | なし |
| 権利 | 所有権 |
| 借地権 | - |
| 現況 | 未完成 |
| 引渡時期 | 相談 |
| 引渡条件 | |
| 取引態様 | 媒介 |
| 管理コード | HF402539 |
設備・特記
《設備》:陽当り良好/上水道/南道路/下水道/カウンターキッチン/クローゼット/システムキッチン/追い焚き風呂/3口コンロ/バルコニー/駐車場2台分/ワイドバルコニー/南面バルコニー/都市ガス/南向き/LDK15畳以上/閑静な住宅街/2面採光/全居室収納/床下収納/シューズインクローゼット/ウォークインクローゼット/全居室フローリング/TVモニター付きインターホン/角地
《物件の特徴》:角地×南向きで暖かい陽射しと心地よい風を取り込めます☆彡
備考
《その他》:販売戸数:1戸 / 備考:馬橋駅徒歩7分の好立地!駅まで徒歩圏で毎日の通勤やお出かけに便利ですね。閑静な住宅街に位置するため、子育て世帯に安心の住環境です。ご家族皆様が心から快適に暮らせるロケーション☆お客様が満足できる物件が見つかるまで、全力でサポートさせて頂きます☆ / 国土法届出:不要
《建築確認番号》:第HPA-25-11428-1号
※詳細については、Webサイトにてご確認ください。現状と異なる場合は、現状を優先させていただきます。
※取引態様の欄に「媒介」と表示された物件は「仲介物件」です。ご成約の際には仲介手数料を申し受けます。
情報更新日|2025年10月21日
次回更新予定|2025年11月9日