3,090万円
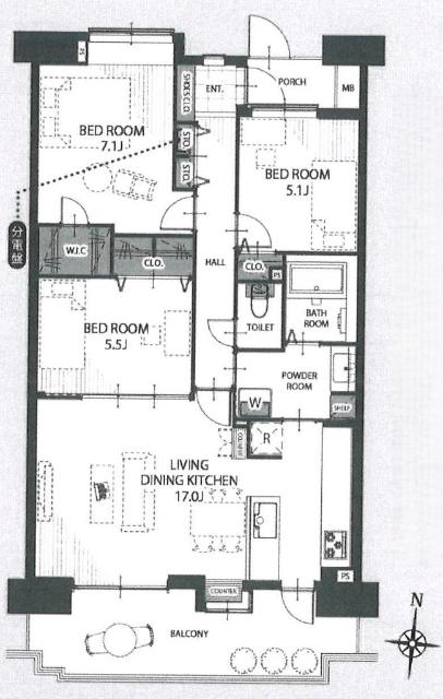
3LDK
種別 マンション
専有面積 77.72㎡(壁芯)
おすすめ
ポイント
令和7年10月リノベーション◎水回り等新築同様きれいなお部屋♪
最上階&南向き☆バルコニー前面棟無でさらに日当たり・眺望良好◎
収納充実!WIC完備でおしゃれ好きなご家族のお荷物もすっきり☆
ペット可(細則有)!大切なペットさんと一緒にお住まい頂けます♪
| 築年月 | 2000年2月 |
|---|---|
| 構造 | 鉄筋コンクリート造 |
| 所在階 | 10階建ての10階 |
| 総戸数 | 93戸 |
| 向き | 南 |
| バルコニー面積 | 13.81㎡ |
| 駐車場 | 駐車場有り 8,000円/月 |
| 施工会社 | 東急建設(株) |
| 管理会社 | (株)日鉄コミュニティ |
| 管理形態 | 全部委託(日勤) |
| 権利 | 所有権 |
| 借地権 | - |
| 現況 | 空室(入居歴有) |
| 引渡時期 | 相談 |
| 引渡条件 | |
| 管理費 | 11,820円/月 |
| 修繕積立金 | 17,100円/月 |
| 取引態様 | 媒介 |
| 管理コード | HF402541 |
設備・特記
《設備》:陽当り良好/リノベーション/小学校徒歩10分以内/室内洗濯機置場/クローゼット/システムキッチン/オートバス/追い焚き風呂/3口コンロ/バルコニー/ペット対応/最上階/南面バルコニー/前面棟無/ペット相談可/南向き/LDK15畳以上/閑静な住宅街/全居室収納/浄水器/温水洗浄便座/食器洗浄乾燥機/ウォークインクローゼット/エレベータ/全居室フローリング/TVモニター付きインターホン/高層階
《物件の特徴》:令和7年10月リノベーション◎水回り等新築同様きれいなお部屋♪
備考
《その他費用》:トランクルーム300/月
《その他》:施工会社(東急建設(株)) / 管理会社((株)日鉄コミュニティ) / 販売戸数:1戸 / 備考:小・中学校いずれも徒歩10分圏内と、子育てファミリーにぴったりの物件です◎スーパー隣接している他、周辺にお買い物施設揃う充実のロケーション♪きれいにうまれかわったお部屋をぜひご見学下さい!☆お客様が満足できる物件が見つかるまで全力でサポートさせて頂きます☆ / 用途地域:工業地域 / 国土法届出:不要
※詳細については、Webサイトにてご確認ください。現状と異なる場合は、現状を優先させていただきます。
※取引態様の欄に「媒介」と表示された物件は「仲介物件」です。ご成約の際には仲介手数料を申し受けます。
情報更新日|2025年12月4日
次回更新予定|2025年12月25日