3,980万円
4LDK
種別 戸建て
建物面積 99.94㎡(壁芯)
おすすめ
ポイント
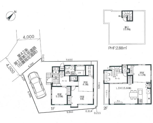
LDK+4部屋の間取りでご家族それぞれの空間が確保しやすい♪
日差しが取り込みやすい2階リビング!プライバシーも安心ですね☆
WIC等全居室収納あり◎お荷物が片付きお掃除もしやすいですね♪
ワークスペースはお子様の自宅学習や在宅ワークにも使えますね☆
| 築年月 | 2025年12月 |
|---|---|
| 構造 | 木造 |
| 階数 | 2階建て |
| 土地面積 | 100.86㎡ (30.51坪) |
| 駐車スペース | 駐車場あり( 1台) |
| 都市計画 | 市街化区域 |
| 用途地域 | 第一種低層住居専用地域 |
| 建蔽率/容積率 | 50% / 100% |
| 地目 | 宅地 |
| 区画整理 | - |
| 接道 | 北西側4.0m私道に接道/位置指定道路:あり |
| 私道 | なし |
| 権利 | 所有権 |
| 借地権 | - |
| 現況 | 未完成 |
| 引渡時期 | 相談 |
| 引渡条件 | |
| 取引態様 | 媒介 |
| 管理コード | HF402546 |
設備・特記
《設備》:陽当り良好/上水道/小学校徒歩10分以内/複層ガラス/下水道/カウンターキッチン/クローゼット/システムキッチン/オートバス/追い焚き風呂/3口コンロ/バルコニー/24時間換気システム/ワイドバルコニー/ルーフバルコニー/南面バルコニー/都市ガス/南向き/LDK15畳以上/閑静な住宅街/2面採光/浄水器/全居室収納/トイレ2ヶ所/温水洗浄便座/床下収納/ウォークインクローゼット/全居室フローリング/TVモニター付きインターホン
《物件の特徴》:LDK+4部屋の間取りでご家族それぞれの空間が確保しやすい♪
備考
《その他》:販売戸数:1戸 / 備考:「高根木戸駅」徒歩圏内◎小学校徒歩10分圏内でお子様を安心して送り出すことができますね!コンビニ徒歩5分圏内でちょっとしたお買い物に便利!子育て世帯に嬉しい閑静な住宅街で穏やかな生活を!☆お客様が満足できる物件が見つかるまで全力でサポートさせて頂きます☆ / 国土法届出:不要
《建築確認番号》:24UDI1C建07481
※詳細については、Webサイトにてご確認ください。現状と異なる場合は、現状を優先させていただきます。
※取引態様の欄に「媒介」と表示された物件は「仲介物件」です。ご成約の際には仲介手数料を申し受けます。
情報更新日|2025年10月23日
次回更新予定|2025年11月8日