5,180万円
4LDK
種別 戸建て
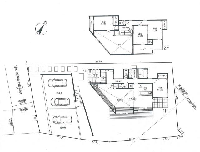
建物面積 131.19㎡(壁芯)
おすすめ
ポイント
南道路につき採光良好♪陽当り・風通しよく心地良い住空間です☆
ご家族と会話を楽しみながらお料理が出来る対面キッチン
溢れる光をたっぷり取り込んだ25帖の広々リビングダイニング◎
全居室収納有で季節物の衣類、バッグ等スッキリ片付きますよ☆
| 築年月 | 2026年2月 |
|---|---|
| 構造 | 木造 |
| 階数 | 2階建て |
| 土地面積 | 362.65㎡ (109.70坪) |
| 駐車スペース | 駐車場あり( 3台) |
| 都市計画 | 市街化区域 |
| 用途地域 | 第一種低層住居専用地域 |
| 建蔽率/容積率 | 60% / 150% |
| 地目 | 宅地 |
| 区画整理 | - |
| 接道 | 南側4.0m公道に接道 |
| 私道 | なし |
| 権利 | 所有権 |
| 借地権 | - |
| 現況 | 未完成 |
| 引渡時期 | 相談 |
| 引渡条件 | |
| 取引態様 | 媒介 |
| 管理コード | HF402548 |
設備・特記
《設備》:陽当り良好/上水道/南道路/下水道/カウンターキッチン/テラス/システムキッチン/オートバス/追い焚き風呂/3口コンロ/LDK20畳以上/バルコニー/24時間換気システム/バルコニー2面以上/駐車場3台分/ワイドバルコニー/南面バルコニー/都市ガス/南向き/吹抜/浄化槽/閑静な住宅街/2面採光/浄水器/トイレ2ヶ所/温水洗浄便座/ウッドデッキ/全居室フローリング/TVモニター付きインターホン
《物件の特徴》:南道路につき採光良好♪陽当り・風通しよく心地良い住空間です☆
備考
《その他》:販売戸数:1戸 / 備考:鎌ケ谷駅徒歩8分で通勤通学に便利です!コンビニ、スーパーなどが周辺にあり、生活に大変便利です。小学校も近く好立地です☆広めの駐車スペースは並列3台可能です☆お客様が満足できる物件が見つかるまで全力でサポートさせて頂きます☆ / 国土法届出:不要
《建築確認番号》:第25UDI1W建03396号
※詳細については、Webサイトにてご確認ください。現状と異なる場合は、現状を優先させていただきます。
※取引態様の欄に「媒介」と表示された物件は「仲介物件」です。ご成約の際には仲介手数料を申し受けます。
情報更新日|2025年10月24日
次回更新予定|2025年11月9日