4,780万円
3LDK
種別 戸建て
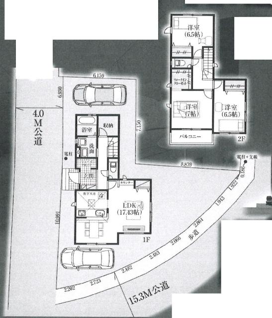
建物面積 100.19㎡(壁芯)
おすすめ
ポイント
国が定めた住宅性能表示制度において7項目最高等級獲得物件☆彡
角地につき陽当たり・風通し良好♪前面道路15.3m圧倒的広さ!
3LDKの全室収納+17.43帖の広々としたリビングで快適◎
ウォークインクローゼットと全室収納で家族の荷物もスッキリ☆彡
| 築年月 | 2025年9月 |
|---|---|
| 構造 | 木造 |
| 階数 | 2階建て |
| 土地面積 | 148.18㎡ (44.82坪) |
| 駐車スペース | 駐車場あり( 2台) |
| 都市計画 | 市街化区域 |
| 用途地域 | 第一種低層住居専用地域 |
| 建蔽率/容積率 | 40% / 80% |
| 地目 | 宅地 |
| 区画整理 | - |
| 接道 | 南側15.3m公道に接道/西側4.0m公道に接道 |
| 私道 | なし |
| 権利 | 所有権 |
| 借地権 | - |
| 現況 | 空室(入居歴無) |
| 引渡時期 | 相談 |
| 引渡条件 | |
| 取引態様 | 媒介 |
| 管理コード | HF402555 |
設備・特記
《設備》:陽当り良好/上水道/南道路/耐震構造/前道6m以上/小学校徒歩10分以内/複層ガラス/下水道/カウンターキッチン/クローゼット/浴室暖房/システムキッチン/オートバス/追い焚き風呂/3口コンロ/浴室乾燥機/バルコニー/駐車場2台分/南面バルコニー/都市ガス/性能評価書取得/南向き/設計住宅性能評価書/LDK15畳以上/閑静な住宅街/浄水器/全居室収納/トイレ2ヶ所/温水洗浄便座/洗髪洗面化粧台/床下収納/シューズインクローゼット/ウォークインクローゼット/全居室フローリング/角地
《物件の特徴》:国が定めた住宅性能表示制度において7項目最高等級獲得物件☆彡
備考
《その他》:販売戸数:1戸 / 備考:北総線「矢切」駅より徒歩18分の閑静な住宅街にある3LDKの物件!リビング17.43帖と広々し、角地につき陽当たり風通し良好♪小学校・中学校ともに徒歩10分圏内でお子さまの通学も安心☆お客様が満足できる物件が見つかるまで全力でサポートさせて頂きます☆ / 国土法届出:不要
※詳細については、Webサイトにてご確認ください。現状と異なる場合は、現状を優先させていただきます。
※取引態様の欄に「媒介」と表示された物件は「仲介物件」です。ご成約の際には仲介手数料を申し受けます。
情報更新日|2025年10月25日
次回更新予定|2025年11月10日