2,988万円
4LDK
種別 戸建て
建物面積 96.78㎡(壁芯)
おすすめ
ポイント
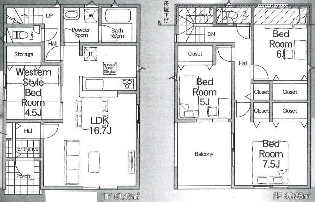
29坪建物・土地35坪で4LDKと部屋数が多い新築物件です☆彡
全ての部屋に収納があり、ご家族のお荷物がスッキリ片付きます♪
システムキッチン3口コンロでお料理はかどる♪床下収納有り◎
LDK16.7帖の大型リビング!南向きで風通し・陽当たり良好♪
| 築年月 | 2026年1月 |
|---|---|
| 構造 | 木造 |
| 階数 | 2階建て |
| 土地面積 | 115.87㎡ (35.05坪) |
| 駐車スペース | 駐車場あり( 1台) |
| 都市計画 | 市街化区域 |
| 用途地域 | 第一種低層住居専用地域 |
| 建蔽率/容積率 | 60% / 150% |
| 地目 | 宅地 |
| 区画整理 | - |
| 接道 | 南西側6.8m公道に接道 |
| 私道 | なし |
| 権利 | 所有権 |
| 借地権 | - |
| 現況 | 未完成 |
| 引渡時期 | 相談 |
| 引渡条件 | |
| 取引態様 | 媒介 |
| 管理コード | HF402592 |
設備・特記
《設備》:陽当り良好/制震構造/上水道/フラット35S適合・利用可/複層ガラス/カウンターキッチン/浴室暖房/システムキッチン/オートバス/追い焚き風呂/3口コンロ/浴室乾燥機/バルコニー/照明器具/南面バルコニー/都市ガス/性能評価書取得/南向き/浄化槽/LDK15畳以上/浄水器/全居室収納/トイレ2ヶ所/温水洗浄便座/床下収納/TVモニター付きインターホン/防犯カメラ
《物件の特徴》:29坪建物・土地35坪で4LDKと部屋数が多い新築物件です☆彡
備考
《その他》:販売戸数:1戸 / 備考:京成電鉄松戸線「鎌ヶ谷大仏」より徒歩21分、東武野田線「馬込沢」駅より徒歩25分の閑静な住宅街にある新築戸建!周辺にはスーパー・コンビニ・ドラッグストアがあり、毎日のお買い物に便利です☆お客様が満足できる物件が見つかるまで全力でサポートさせて頂きます☆ / 国土法届出:不要
《建築確認番号》:第25UDI1W建08071号
※詳細については、Webサイトにてご確認ください。現状と異なる場合は、現状を優先させていただきます。
※取引態様の欄に「媒介」と表示された物件は「仲介物件」です。ご成約の際には仲介手数料を申し受けます。
情報更新日|2025年10月31日
次回更新予定|2025年11月14日