4,080万円
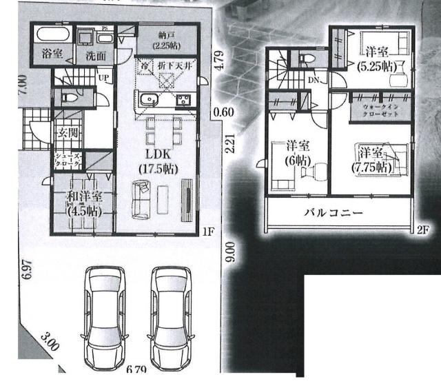
4LDK
種別 戸建て
建物面積 103.50㎡(壁芯)
おすすめ
ポイント
ご家族それぞれのプライベート空間が確保できる間取りです♪
角地ならではの陽当たりと通風の良さで快適な新生活を送れますね☆
全居室収納◎大容量のWICは衣類等の収納に最適♪衣替えも楽々!
キッチン後ろの納戸はストック収納等多目的に利用できますね☆
| 築年月 | 2025年11月 |
|---|---|
| 構造 | 木造 |
| 階数 | 2階建て |
| 土地面積 | 140.99㎡ (42.64坪) |
| 駐車スペース | 駐車場あり( 1台) |
| 都市計画 | 市街化区域 |
| 用途地域 | 第一種住居地域 |
| 建蔽率/容積率 | 60% / 200% |
| 地目 | 宅地 |
| 区画整理 | - |
| 接道 | 北西側4.0m公道に接道/南西側6.0m公道に接道 |
| 私道 | なし |
| 権利 | 所有権 |
| 借地権 | - |
| 現況 | 未完成 |
| 引渡時期 | 相談 |
| 引渡条件 | |
| 取引態様 | 媒介 |
| 管理コード | HF402609 |
設備・特記
《設備》:陽当り良好/上水道/南道路/前道6m以上/複層ガラス/下水道/カウンターキッチン/クローゼット/システムキッチン/オートバス/追い焚き風呂/3口コンロ/浴室乾燥機/バルコニー/照明器具/24時間換気システム/駐車場2台分/南面バルコニー/都市ガス/南向き/LDK15畳以上/閑静な住宅街/2面採光/納戸/浄水器/全居室収納/トイレ2ヶ所/温水洗浄便座/洗髪洗面化粧台/床下収納/ウォークインクローゼット/TVモニター付きインターホン/角地
《物件の特徴》:ご家族それぞれのプライベート空間が確保できる間取りです♪
備考
《その他》:販売戸数:1戸 / 備考:「京成大久保駅」徒歩圏内◎小・中学校徒歩15分圏内でお子様の通学も安心!閑静な住宅街で子育て世帯に嬉しい住環境です!前道6M×角地ならではの開放感溢れる快適な暮らしを叶えられますよ!☆お客様が満足できる物件が見つかるまで全力でサポートさせて頂きます☆ / 国土法届出:不要
《建築確認番号》:第HPA-25-08104-1号
※詳細については、Webサイトにてご確認ください。現状と異なる場合は、現状を優先させていただきます。
※取引態様の欄に「媒介」と表示された物件は「仲介物件」です。ご成約の際には仲介手数料を申し受けます。
情報更新日|2025年10月31日
次回更新予定|2025年11月17日