1,680万円
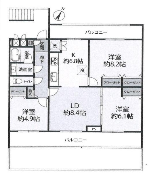
3LDK
種別 マンション
専有面積 73.72㎡(壁芯)
おすすめ
ポイント
2階・南東向きにつき、陽当たり・通風良好です!開放的な3LDK
新規内装リフォーム済で、綺麗なお部屋で新生活を送りませんか?
3部屋続きのワイドバルコニーでお洗濯物も沢山干すことができます
独立型キッチンでリビングやダイニングまで油や煙が広がりにくい♪
| 築年月 | 1973年9月 |
|---|---|
| 構造 | 鉄筋コンクリート造 |
| 所在階 | 地下1階・地上5階建ての2階 |
| 総戸数 | 286戸 |
| 向き | 南東 |
| バルコニー面積 | 19.58㎡ |
| 駐車場 | 駐車場有り 6,000円/月 |
| 施工会社 | - |
| 管理会社 | - |
| 管理形態 | 全部委託(日勤) |
| 権利 | 所有権 |
| 借地権 | - |
| 現況 | 空室(入居歴有) |
| 引渡時期 | 相談 |
| 引渡条件 | |
| 管理費 | 7,600円/月 |
| 修繕積立金 | 14,200円/月 |
| 取引態様 | 媒介 |
| 管理コード | HF402641 |
設備・特記
《設備》:陽当り良好/都市ガス/南向き/内装リフォーム/室内洗濯機置場/小学校徒歩10分以内/2面採光/クローゼット/全居室収納/温水洗浄便座/浴室暖房/洗髪洗面化粧台/システムキッチン/オートバス/追い焚き風呂/3口コンロ/浴室乾燥機/バルコニー/全居室フローリング/TVモニター付きインターホン/バルコニー2面以上/ワイドバルコニー/南面バルコニー/角部屋
《物件の特徴》:2階・南東向きにつき、陽当たり・通風良好です!開放的な3LDK
備考
《その他》:販売戸数:1戸 / 備考:人気の船橋駅エリア!バス停 徒歩1分の好立地◎天気が悪い日も嬉しい近さです。夏見台小学校まで徒歩圏内とお子様の通学も安心ですね♪スーパーも徒歩圏内にあり、毎日のお買い物も便利です♪☆お客様が満足できる物件が見つかるまで全力でサポートさせて頂きます☆ / 国土法届出:不要
※詳細については、Webサイトにてご確認ください。現状と異なる場合は、現状を優先させていただきます。
※取引態様の欄に「媒介」と表示された物件は「仲介物件」です。ご成約の際には仲介手数料を申し受けます。
情報更新日|2025年11月7日
次回更新予定|2025年11月23日