4,280万円
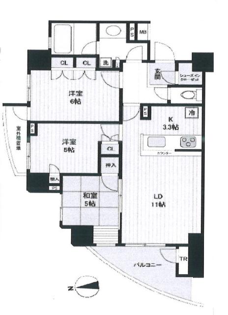
3LDK
種別 マンション
専有面積 69.37㎡(壁芯)
おすすめ
ポイント
高層階×角部屋につき通風・眺望良好♪スカイツリーを望む毎日を☆
LDKの床暖房付き♪空気が乾燥しにくくホコリも舞い上がりません
広々LDKの隣には寛ぎの和室あり◎ホッと落ち着ける住空間です♪
ペット飼育可(細則有)大切な家族の一員と新生活を送りませんか♪
| 築年月 | 2008年2月 |
|---|---|
| 構造 | 鉄筋コンクリート造 |
| 所在階 | 14階建ての10階 |
| 総戸数 | 39戸 |
| 向き | 西 |
| バルコニー面積 | 6.33㎡ |
| 駐車場 | 駐車場有り 15,000円/月 |
| 施工会社 | - |
| 管理会社 | コムスエステートサービス株式会社 |
| 管理形態 | 全部委託(日勤) |
| 権利 | 所有権 |
| 借地権 | - |
| 現況 | 居住中 |
| 引渡時期 | 相談 |
| 引渡条件 | |
| 管理費 | 11,090円/月 |
| 修繕積立金 | 11,560円/月 |
| 取引態様 | 媒介 |
| 管理コード | HF402647 |
設備・特記
《設備》:都市ガス/床暖房/ペット相談可/室内洗濯機置場/カウンターキッチン/クローゼット/全居室収納/温水洗浄便座/洗髪洗面化粧台/システムキッチン/追い焚き風呂/3口コンロ/シューズインクローゼット/バルコニー/エレベータ/宅配BOX/ペット対応/オートロック/高層階
《物件の特徴》:高層階×角部屋につき通風・眺望良好♪スカイツリーを望む毎日を☆
備考
《その他費用》:修繕積立金12月より改訂(16,180円/月)
《その他》:管理会社(コムスエステートサービス株式会社) / 販売戸数:1戸 / 備考:閑静な住宅街です!子育て世帯に安心の住環境◎コンビニ・スーパーは徒歩圏内!生活環境も整っておりバランスの良い街並み◎中川、荒川、スカイツリーが望めて開放感があります!ぜひご覧ください☆お客様が満足できる物件が見つかるまで全力でサポートさせて頂きます☆ / 用途地域:近隣商業地域 / 国土法届出:不要
※詳細については、Webサイトにてご確認ください。現状と異なる場合は、現状を優先させていただきます。
※取引態様の欄に「媒介」と表示された物件は「仲介物件」です。ご成約の際には仲介手数料を申し受けます。
情報更新日|2025年11月8日
次回更新予定|2025年11月22日