1,990万円
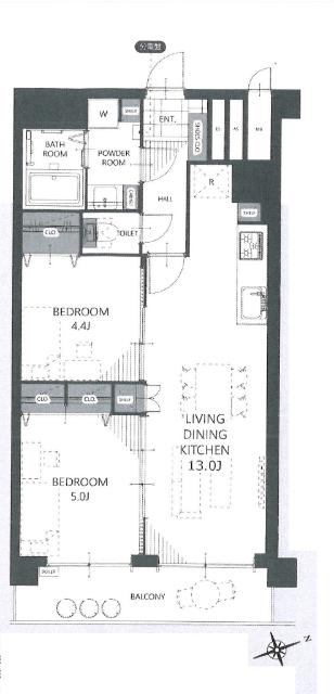
2LDK
種別 マンション
専有面積 53.46㎡(壁芯)
おすすめ
ポイント
新規リノベーション!充実の仕様・設備ありの綺麗なお部屋です☆
南東向きにつき陽当たり良好なお部屋◎暖かい日の光が入ります♪
キッチンが壁付けになっているため、LDKに開放感が生まれます◎
全居室収納あり!スッキリお家が片付きます◎掃除も楽々快適です♪
| 築年月 | 1976年6月 |
|---|---|
| 構造 | 鉄骨鉄筋コンクリート造 |
| 所在階 | 9階建ての3階 |
| 総戸数 | 179戸 |
| 向き | 南東 |
| バルコニー面積 | 5.40㎡ |
| 駐車場 | 駐車場有り 8,000円/月 |
| 施工会社 | - |
| 管理会社 | 株式会社東急コミュニティー |
| 管理形態 | 全部委託(日勤) |
| 権利 | 所有権 |
| 借地権 | - |
| 現況 | 空室(入居歴有) |
| 引渡時期 | 相談 |
| 引渡条件 | |
| 管理費 | 9,800円/月 |
| 修繕積立金 | 11,370円/月 |
| 取引態様 | 媒介 |
| 管理コード | HF402658 |
設備・特記
《設備》:陽当り良好/リノベーション/都市ガス/南向き/室内洗濯機置場/クローゼット/全居室収納/温水洗浄便座/洗髪洗面化粧台/システムキッチン/追い焚き風呂/3口コンロ/バルコニー/エレベータ/全居室フローリング/TVモニター付きインターホン/ペット不可
《物件の特徴》:新規リノベーション!充実の仕様・設備ありの綺麗なお部屋です☆
備考
《その他》:管理会社(株式会社東急コミュニティー) / 販売戸数:1戸 / 備考:JR常磐線「北松戸」駅まで徒歩5分の近さなので、毎日の通勤・通学やお出かけに便利ですね!スーパーが複数あるので毎日のお買い物にも便利な住環境◎新しい設備ですぐに新生活をスタートできます☆お客様が満足できる物件が見つかるまで全力でサポートさせて頂きます☆ / 用途地域:準工業地域 / 国土法届出:不要
※詳細については、Webサイトにてご確認ください。現状と異なる場合は、現状を優先させていただきます。
※取引態様の欄に「媒介」と表示された物件は「仲介物件」です。ご成約の際には仲介手数料を申し受けます。
情報更新日|2025年11月9日
次回更新予定|2025年11月23日