2,299万円
3LDK
種別 戸建て
建物面積 81.56㎡(壁芯)
おすすめ
ポイント
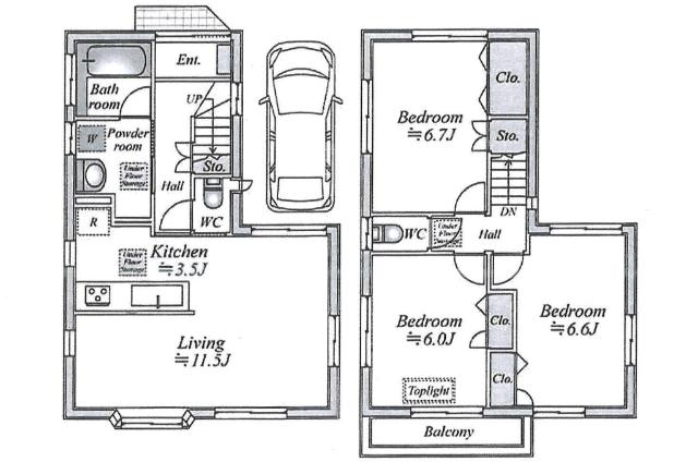
R7年5月新規内装リフォーム完了済☆綺麗なハイグレード設備♪
全部屋収納◎床下収納もありご家族のお荷物スッキリ片付く☆彡
南向きにつき、陽当たり風通し良好!3部屋全室6帖以上で広い◎
浴室乾燥機で室内干しOK◎追炊機能付のバスでいつでもぽかぽか♪
| 築年月 | 2005年1月 |
|---|---|
| 構造 | 木造 |
| 階数 | 2階建て |
| 土地面積 | 83.01㎡ (25.11坪) |
| 駐車スペース | 駐車場あり( 1台) |
| 都市計画 | 市街化区域 |
| 用途地域 | 第一種低層住居専用地域 |
| 建蔽率/容積率 | 50% / 100% |
| 地目 | 宅地 |
| 区画整理 | - |
| 接道 | 北側4.0m公道に接道 |
| 私道 | なし |
| 権利 | 所有権 |
| 借地権 | - |
| 現況 | 空室(入居歴有) |
| 引渡時期 | 相談 |
| 引渡条件 | |
| 取引態様 | 媒介 |
| 管理コード | HF402675 |
設備・特記
《設備》:陽当り良好/上水道/内装リフォーム/下水道/カウンターキッチン/クローゼット/浴室暖房/システムキッチン/オートバス/追い焚き風呂/3口コンロ/浴室乾燥機/バルコニー/24時間換気システム/照明器具/ビルトインガレージ/南面バルコニー/都市ガス/南向き/閑静な住宅街/全居室収納/トイレ2ヶ所/温水洗浄便座/床下収納/シューズインクローゼット/全居室フローリング/TVモニター付きインターホン
《物件の特徴》:R7年5月新規内装リフォーム完了済☆綺麗なハイグレード設備♪
備考
《その他》:販売戸数:1戸 / 備考:京成本線「京成大久保」駅より徒歩13分の閑静な住宅街にある3LDKリフォーム戸建☆全部屋6帖以上と広く、南向きで陽当たり風通し良好です♪小学校も比較的近く通学安心◎コンビニ徒歩5分☆お客様が満足できる物件が見つかるまで全力でサポートさせて頂きます☆ / 国土法届出:不要
※詳細については、Webサイトにてご確認ください。現状と異なる場合は、現状を優先させていただきます。
※取引態様の欄に「媒介」と表示された物件は「仲介物件」です。ご成約の際には仲介手数料を申し受けます。
情報更新日|2025年11月13日
次回更新予定|2025年11月28日