4,399万円
4LDK
種別 戸建て
建物面積 108.39㎡(壁芯)
おすすめ
ポイント
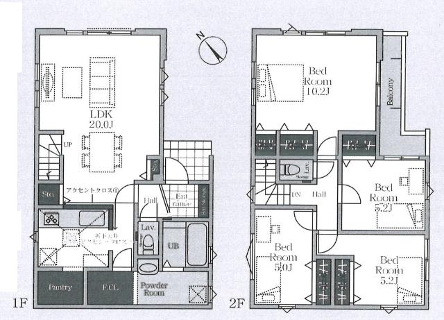
20帖超の大型LDKで家族とゆったり過ごす寛ぎの空間です♪
水廻りを集めた配置になっている為、効率よく家事が捗りますね!
浴室乾燥機完備!雨の日のお洗濯はもちろん、浴室のカビ予防にも◎
パントリーや洗面室棟など収納豊富な間取り!スッキリな住空間◎
| 築年月 | 2026年3月 |
|---|---|
| 構造 | 木造 |
| 階数 | 2階建て |
| 土地面積 | 111.08㎡ (33.60坪) |
| 駐車スペース | 駐車場あり( 2台) |
| 都市計画 | 市街化区域 |
| 用途地域 | 第一種低層住居専用地域 |
| 建蔽率/容積率 | 50% / 100% |
| 地目 | 宅地 |
| 区画整理 | - |
| 接道 | 北側6.0m公道に接道 |
| 私道 | なし |
| 権利 | 所有権 |
| 借地権 | - |
| 現況 | 未完成 |
| 引渡時期 | 相談 |
| 引渡条件 | 相談 |
| 取引態様 | 媒介 |
| 管理コード | HF402684 |
設備・特記
《設備》:陽当り良好/BELS/省エネ基準適合/上水道/小学校徒歩10分以内/下水道/カウンターキッチン/クローゼット/システムキッチン/オートバス/追い焚き風呂/3口コンロ/浴室乾燥機/LDK20畳以上/バルコニー/駐車場2台分/都市ガス/整形地/全室2面採光/閑静な住宅街/2面採光/パントリー/浄水器/全居室収納/トイレ2ヶ所/温水洗浄便座/洗髪洗面化粧台/食器洗浄乾燥機/床下収納/シューズインクローゼット/バス1坪以上/TVモニター付きインターホン
《物件の特徴》:20帖超の大型LDKで家族とゆったり過ごす寛ぎの空間です♪
備考
《その他》:販売戸数:1戸 / 備考:京成本線「京成大和田」駅まで徒歩8分ですので、毎日の通勤・通学やお出かけに便利です!教育施設が徒歩10分圏内の近さ◎スーパーやコンビニも徒歩圏に揃っており、バランスの良い街並みです♪☆お客様が満足できる物件が見つかるまで全力でサポートさせて頂きます☆ / 国土法届出:不要
《建築確認番号》:第25UDIW建07575号
※詳細については、Webサイトにてご確認ください。現状と異なる場合は、現状を優先させていただきます。
※取引態様の欄に「媒介」と表示された物件は「仲介物件」です。ご成約の際には仲介手数料を申し受けます。
情報更新日|2025年11月15日
次回更新予定|2025年11月29日