2,990万円
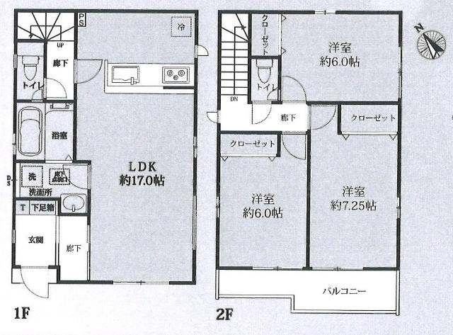
3LDK
種別 戸建て
建物面積 86.32㎡(壁芯)
おすすめ
ポイント
南に面したLDKは明るい陽射しと心地よい風を取り込めます♪
視界の広い対面キッチン♪まとまった水廻りは家事がしやすいです。
全居室5帖以上のゆとりでレイアウト自由自在♪全室収納あり◎
お車並列2台駐車可能!広めの駐車スペースで駐車も楽々ですね。
| 築年月 | 2026年3月 |
|---|---|
| 構造 | 木造 |
| 階数 | 2階建て |
| 土地面積 | 100.00㎡ (30.25坪) |
| 駐車スペース | 駐車場あり( 2台) |
| 都市計画 | 市街化区域 |
| 用途地域 | 第一種低層住居専用地域 |
| 建蔽率/容積率 | 60% / 150% |
| 地目 | 宅地 |
| 区画整理 | - |
| 接道 | 南西側4.0m公道に接道 |
| 私道 | なし |
| 権利 | 所有権 |
| 借地権 | - |
| 現況 | 未完成 |
| 引渡時期 | 相談 |
| 引渡条件 | |
| 取引態様 | 媒介 |
| 管理コード | HF402717 |
設備・特記
《設備》:陽当り良好/上水道/南道路/小学校徒歩10分以内/複層ガラス/下水道/カウンターキッチン/クローゼット/システムキッチン/追い焚き風呂/3口コンロ/浴室乾燥機/バルコニー/24時間換気システム/駐車場2台分/ワイドバルコニー/南面バルコニー/都市ガス/整形地/南向き/LDK15畳以上/全室2面採光/閑静な住宅街/2面採光/全居室収納/トイレ2ヶ所/温水洗浄便座/床下収納/全居室フローリング/TVモニター付きインターホン
《物件の特徴》:南に面したLDKは明るい陽射しと心地よい風を取り込めます♪
備考
《その他》:販売戸数:1戸 / 備考:京成大和田駅徒歩10分!駅まで徒歩圏で通勤・通学やお出かけに便利です。小学校まで徒歩4分の近さで、お子様の通学も安心ですね。快適性・機能性に優れた設備が標準装備されております☆お客様が満足できる物件が見つかるまで、全力でサポートさせて頂きます☆ / 国土法届出:不要
《建築確認番号》:第HPA-25-12365-1号
※詳細については、Webサイトにてご確認ください。現状と異なる場合は、現状を優先させていただきます。
※取引態様の欄に「媒介」と表示された物件は「仲介物件」です。ご成約の際には仲介手数料を申し受けます。
情報更新日|2025年11月22日
次回更新予定|2025年12月10日