1,670万円
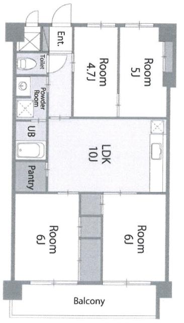
4LDK
種別 マンション
専有面積 70.74㎡(壁芯)
おすすめ
ポイント
閑静な住宅街に佇むマンション。新耐震基準適合物件☆
リフォーム相談も可能!理想の間取りをご検討ください♪
広々バルコニーで採光・通風良好◎快適なお部屋です☆彡
教育施設や公園、買い物施設も近く、便利な住環境が魅力です!
| 築年月 | 1982年12月 |
|---|---|
| 構造 | 鉄筋コンクリート造 |
| 所在階 | 4階建ての3階 |
| 総戸数 | 15戸 |
| 向き | 北西 |
| バルコニー面積 | - |
| 駐車場 | - |
| 施工会社 | - |
| 管理会社 | - |
| 管理形態 | 全部委託(巡回) |
| 権利 | 所有権 |
| 借地権 | - |
| 現況 | 空室(入居歴有) |
| 引渡時期 | 相談 |
| 引渡条件 | 相談 |
| 管理費 | 7,500円/月 |
| 修繕積立金 | 15,000円/月 |
| 取引態様 | 媒介 |
| 管理コード | HF402730 |
設備・特記
《設備》:陽当り良好/CATV/温水洗浄便座/システムキッチン/追い焚き風呂/閑静な住宅街/室内洗濯機置場/クローゼット/バルコニー/全居室フローリング/ワイドバルコニー
《物件の特徴》:閑静な住宅街に佇むマンション。新耐震基準適合物件☆
備考
《その他》:販売戸数:1戸 / 備考:JR総武線、快速停車駅の「新小岩」までバス13分♪バス停は物件から徒歩1分なので、雨の日やお買い物帰りでも安心◎生活施設も利用しやすく便利な街並みです。ぜひ周辺環境もふまえてご覧ください☆お客様が満足できる物件が見つかるまで全力でサポートさせて頂きます☆ / 用途地域:第一種住居地域 / 国土法届出:不要
※詳細については、Webサイトにてご確認ください。現状と異なる場合は、現状を優先させていただきます。
※取引態様の欄に「媒介」と表示された物件は「仲介物件」です。ご成約の際には仲介手数料を申し受けます。
情報更新日|2025年11月24日
次回更新予定|2025年12月10日