3,380万円
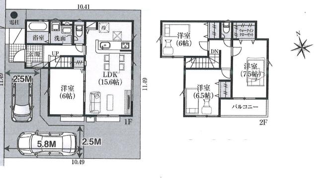
4LDK
種別 戸建て
建物面積 120.15㎡(壁芯)
おすすめ
ポイント
新規リフォーム物件☆新生活にぴったりのキレイな住空間です♪
36坪超のゆとりある敷地!カースペースも2台分確保◎
ご家族それぞれのプライベート空間もしっかり確保できる4LDK★
全居室に収納あり!大容量のWICも完備しています♪
| 築年月 | 2017年5月 |
|---|---|
| 構造 | 木造 |
| 階数 | 2階建て |
| 土地面積 | 98.12㎡ (29.68坪) |
| 駐車スペース | 駐車場あり( 1台) |
| 都市計画 | 市街化区域 |
| 用途地域 | 第一種低層住居専用地域 |
| 建蔽率/容積率 | 50% / 100% |
| 地目 | 宅地 |
| 区画整理 | - |
| 接道 | 西側6.0m公道に11.4m接道 |
| 私道 | なし |
| 権利 | 所有権 |
| 借地権 | - |
| 現況 | 空室(入居歴有) |
| 引渡時期 | 相談 |
| 引渡条件 | 相談 |
| 取引態様 | 媒介 |
| 管理コード | HF402731 |
設備・特記
《設備》:陽当り良好/都市ガス/上水道/整形地/前道6m以上/内装リフォーム/浄化槽/LDK15畳以上/閑静な住宅街/小学校徒歩10分以内/クローゼット/全居室収納/トイレ2ヶ所/床下収納/ウォークインクローゼット/バルコニー/全居室フローリング/駐車場2台分/ワイドバルコニー/南面バルコニー
《物件の特徴》:新規リフォーム物件☆新生活にぴったりのキレイな住空間です♪
備考
《その他》:販売戸数:1戸 / 備考:閑静な住宅街に佇む落ち着いた住まい。周辺には公園や教育施設が複数あり、安全面が行き届いた安心の住環境◎生活施設や飲食店も利用しやすく、ファミリーにぴったりなバランスの良い街並みです♪☆お客様が満足できる物件が見つかるまで全力でサポートさせて頂きます☆ / 国土法届出:不要
※詳細については、Webサイトにてご確認ください。現状と異なる場合は、現状を優先させていただきます。
※取引態様の欄に「媒介」と表示された物件は「仲介物件」です。ご成約の際には仲介手数料を申し受けます。
情報更新日|2025年11月24日
次回更新予定|2025年12月8日