5,499万円
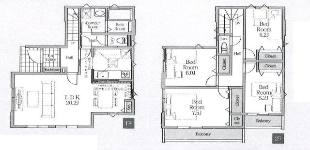
4LDK
種別 戸建て
建物面積 105.82㎡(壁芯)
おすすめ
ポイント
駅から徒歩9分!2路線利用可能で通勤・通学の利便性良好です◎
4部屋につき、お子様の部屋や書斎など様々な空間を創れます♪
全部屋収納、床下収納、リビング収納でお部屋がスッキリ片付く☆
3口コンロのシステムキッチンには食洗機搭載で家事効率UP☆彡
| 築年月 | 2026年3月 |
|---|---|
| 構造 | 木造 |
| 階数 | 2階建て |
| 土地面積 | 117.35㎡ (35.49坪) |
| 駐車スペース | 駐車場あり( 1台) |
| 都市計画 | 市街化区域 |
| 用途地域 | 第一種住居地域 |
| 建蔽率/容積率 | 70% / 200% |
| 地目 | 宅地 |
| 区画整理 | - |
| 接道 | 西側6.0m公道に接道/東側4.0m公道に接道 |
| 私道 | なし |
| 権利 | 所有権 |
| 借地権 | - |
| 現況 | 未完成 |
| 引渡時期 | 相談 |
| 引渡条件 | |
| 取引態様 | 媒介 |
| 管理コード | HF402753 |
設備・特記
《設備》:陽当り良好/上水道/小学校徒歩10分以内/下水道/カウンターキッチン/クローゼット/システムキッチン/オートバス/追い焚き風呂/3口コンロ/浴室乾燥機/LDK20畳以上/バルコニー2面以上/南面バルコニー/都市ガス/南向き/浄水器/全居室収納/トイレ2ヶ所/温水洗浄便座/洗髪洗面化粧台/食器洗浄乾燥機/床下収納/バス1坪以上/全居室フローリング/TVモニター付きインターホン
《物件の特徴》:駅から徒歩9分!2路線利用可能で通勤・通学の利便性良好です◎
備考
《その他》:販売戸数:1戸 / 備考:JR武蔵野線「新八柱」駅、京成松戸線「八柱」駅より徒歩9分の駅近好立地物件!都内にも出やすく2路線で交通の利便性◎スーパー・コンビニ・保育園が徒歩10圏内で周辺環境良好です☆お客様が満足できる物件が見つかるまで全力でサポートさせて頂きます☆ / 国土法届出:不要
《建築確認番号》:第25UDI1W建07863号
※詳細については、Webサイトにてご確認ください。現状と異なる場合は、現状を優先させていただきます。
※取引態様の欄に「媒介」と表示された物件は「仲介物件」です。ご成約の際には仲介手数料を申し受けます。
情報更新日|2025年11月28日
次回更新予定|2025年12月13日