2,830万円
3LDK
種別 戸建て
建物面積 70.40㎡(壁芯)
おすすめ
ポイント
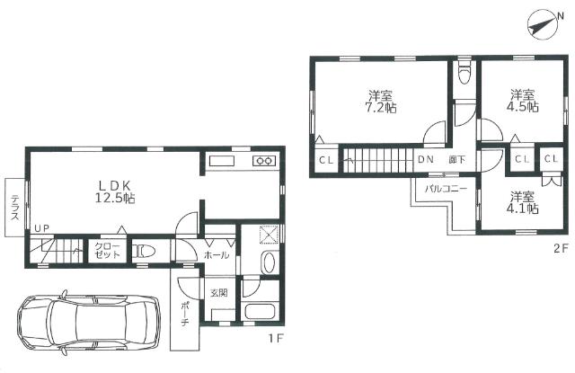
南に面したテラス♪暮らしやすい2階建!完成済みにつき内覧可能◎
キッチンが独立した作りで来客時にはゆっくりとお料理できますね。
全居室収納完備◎スッキリ整理・整頓でき空間を有効活用できます。
1階に水回りがまとまり、帰宅後の手洗いうがいもスムーズに♪
| 築年月 | 2025年10月 |
|---|---|
| 構造 | 木造 |
| 階数 | 2階建て |
| 土地面積 | 70.50㎡ (21.32坪) |
| 駐車スペース | 駐車場あり( 1台) |
| 都市計画 | 市街化区域 |
| 用途地域 | 第一種低層住居専用地域 |
| 建蔽率/容積率 | 50% / 100% |
| 地目 | 宅地 |
| 区画整理 | - |
| 接道 | |
| 私道 | なし |
| 権利 | 所有権 |
| 借地権 | - |
| 現況 | 空室(入居歴無) |
| 引渡時期 | 相談 |
| 引渡条件 | |
| 取引態様 | 媒介 |
| 管理コード | HF402755 |
設備・特記
《設備》:陽当り良好/都市ガス/上水道/南向き/全室2面採光/閑静な住宅街/小学校徒歩10分以内/下水道/2面採光/クローゼット/全居室収納/トイレ2ヶ所/温水洗浄便座/システムキッチン/追い焚き風呂/2口コンロ/バルコニー/全居室フローリング/TVモニター付きインターホン/南面バルコニー
《物件の特徴》:南に面したテラス♪暮らしやすい2階建!完成済みにつき内覧可能◎
備考
《その他》:販売戸数:1戸 / 備考:二和向台駅徒歩12分!駅まで徒歩圏で、通勤やお出かけに便利ですね。小学校まで徒歩2分の近さで、お子様の毎日の通学も安心です◎閑静な住宅街に位置するため、穏やかな生活が叶います☆お客様が満足できる物件が見つかるまで、全力でサポートさせて頂きます☆ / 国土法届出:不要
※詳細については、Webサイトにてご確認ください。現状と異なる場合は、現状を優先させていただきます。
※取引態様の欄に「媒介」と表示された物件は「仲介物件」です。ご成約の際には仲介手数料を申し受けます。
情報更新日|2025年11月29日
次回更新予定|2025年12月13日