3,190万円
4LDK
種別 戸建て
建物面積 102.46㎡(壁芯)
おすすめ
ポイント
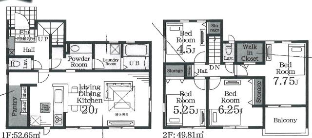
リビング大型20帖!折上天井で更に特別でオシャレな空間に◎
キッチン裏にパントリーがあり大容量収納◎可動棚で調整しやすい☆
全居室収納!床下・玄関にも収納がありご家族のお荷物スッキリ♪
ランドリールームがあり、脱衣所・洗面所使用時に困りません☆彡
| 築年月 | 2026年2月 |
|---|---|
| 構造 | 木造 |
| 階数 | 2階建て |
| 土地面積 | 128.27㎡ (38.80坪) |
| 駐車スペース | 駐車場あり( 3台) |
| 都市計画 | 市街化区域 |
| 用途地域 | 第一種住居地域 |
| 建蔽率/容積率 | 60% / 200% |
| 地目 | 宅地 |
| 区画整理 | - |
| 接道 | 北側4.0m私道に接道 |
| 私道 | なし |
| 権利 | 所有権 |
| 借地権 | - |
| 現況 | 未完成 |
| 引渡時期 | 相談 |
| 引渡条件 | |
| 取引態様 | 媒介 |
| 管理コード | HF402831 |
設備・特記
《設備》:陽当り良好/上水道/下水道/カウンターキッチン/クローゼット/システムキッチン/3口コンロ/浴室乾燥機/LDK20畳以上/24時間換気システム/駐車場3台分/南面バルコニー/都市ガス/南向き/閑静な住宅街/パントリー/浄水器/全居室収納/トイレ2ヶ所/温水洗浄便座/洗髪洗面化粧台/床下収納/ウォークインクローゼット/全居室フローリング/TVモニター付きインターホン
《物件の特徴》:リビング大型20帖!折上天井で更に特別でオシャレな空間に◎
備考
《その他》:販売戸数:1戸 / 備考:京成松戸線「鎌ヶ谷大仏」駅バス11分「鎌ヶ谷」停より徒歩5分の閑静な住宅街にある新築戸建です☆4部屋と部屋数が多く、駐車スペースも充実◎スーパー・コンビニ徒歩6分と毎日のお買い物に便利です☆お客様が満足できる物件が見つかるまで全力でサポートさせて頂きます☆ / 国土法届出:不要
《建築確認番号》:第25UDI1W建06470号
※詳細については、Webサイトにてご確認ください。現状と異なる場合は、現状を優先させていただきます。
※取引態様の欄に「媒介」と表示された物件は「仲介物件」です。ご成約の際には仲介手数料を申し受けます。
情報更新日|2025年12月15日
次回更新予定|2025年12月31日