2,488万円
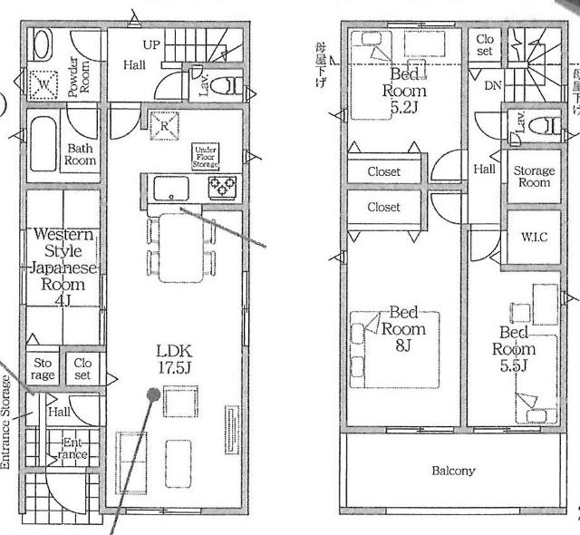
4SLDK
種別 戸建て
建物面積 96.39㎡(壁芯)
おすすめ
ポイント
ご家族それぞれのプライベート空間が確保しやすいLDK+4部屋☆
適材適所に収納あり◎お部屋がすっきり片付いてお掃除も楽々です♪
ご家族との会話が弾む人気の対面式キッチン!お料理時間も楽しく☆
ご来客時にも便利な複数台駐車可能スペースあり(車種制限有)!
| 築年月 | 2026年3月 |
|---|---|
| 構造 | 木造 |
| 階数 | 2階建て |
| 土地面積 | 136.63㎡ (41.33坪) |
| 駐車スペース | 駐車場あり( 1台) |
| 都市計画 | 市街化区域 |
| 用途地域 | 第一種低層住居専用地域 |
| 建蔽率/容積率 | 50% / 100% |
| 地目 | 宅地 |
| 区画整理 | - |
| 接道 | 西側4.5m公道に接道 |
| 私道 | なし |
| 権利 | 所有権 |
| 借地権 | - |
| 現況 | 未完成 |
| 引渡時期 | 相談 |
| 引渡条件 | |
| 取引態様 | 媒介 |
| 管理コード | HF402917 |
設備・特記
《設備》:陽当り良好/上水道/小学校徒歩10分以内/複層ガラス/下水道/カウンターキッチン/クローゼット/システムキッチン/オートバス/追い焚き風呂/3口コンロ/浴室乾燥機/バルコニー/照明器具/24時間換気システム/駐車場2台分/ワイドバルコニー/南面バルコニー/都市ガス/南向き/閑静な住宅街/LDK15畳以上/2面採光/浄水器/全居室収納/トイレ2ヶ所/温水洗浄便座/洗髪洗面化粧台/床下収納/ウォークインクローゼット/TVモニター付きインターホン
《物件の特徴》:ご家族それぞれのプライベート空間が確保しやすいLDK+4部屋☆
備考
《その他》:販売戸数:1戸 / 備考:「二和向台駅」エリア!閑静な住宅街で子育て世帯に嬉しい穏やかな生活が叶いますよ!小・中学校徒歩10分圏内と近くお子様の通学も安心ですね!ゆとりある住空間で快適な新生活をはじめられますよ!☆お客様が満足できる物件が見つかるまで全力でサポートさせて頂きます☆ / 国土法届出:不要
《建築確認番号》:第KBI-SGM25-10-4116号
※詳細については、Webサイトにてご確認ください。現状と異なる場合は、現状を優先させていただきます。
※取引態様の欄に「媒介」と表示された物件は「仲介物件」です。ご成約の際には仲介手数料を申し受けます。
情報更新日|2026年2月20日
次回更新予定|2026年3月18日