4,590万円
3LDK
種別 戸建て
建物面積 78.86㎡(壁芯)
おすすめ
ポイント
こだわりの新築戸建★高い住宅性能・充実の設備で快適な新生活を◎
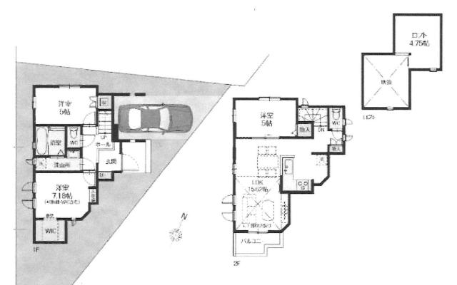
LDK15帖超!上部は吹抜でより開放感のある空間に♪
安心の2階リビングの間取り。日当たりも良好です◎
アイディア次第でマルチに使えるロフトスペース付き☆彡
| 築年月 | 2026年2月 |
|---|---|
| 構造 | 木造 |
| 階数 | 2階建て |
| 土地面積 | 118.42㎡ (35.82坪) |
| 駐車スペース | 駐車場あり( 1台) |
| 都市計画 | 市街化区域 |
| 用途地域 | 第一種低層住居専用地域 |
| 建蔽率/容積率 | 40% / 80% |
| 地目 | 宅地 |
| 区画整理 | - |
| 接道 | 南東側4.6m公道に接道/南西側4.0m公道に接道 |
| 私道 | なし |
| 権利 | 所有権 |
| 借地権 | - |
| 現況 | 未完成 |
| 引渡時期 | 相談 |
| 引渡条件 | 相談 |
| 取引態様 | 媒介 |
| 管理コード | HF402936 |
設備・特記
《設備》:陽当り良好/都市ガス/上水道/南道路/LDK15畳以上/閑静な住宅街/クローゼット/全居室収納/トイレ2ヶ所/食器洗浄乾燥機/システムキッチン/浴室乾燥機/ウォークインクローゼット/バルコニー/全居室フローリング/南面バルコニー
《物件の特徴》:こだわりの新築戸建★高い住宅性能・充実の設備で快適な新生活を◎
備考
《その他》:販売戸数:1戸 / 備考:北総線「矢切」駅徒歩13分!周辺には教育施設や公園が複数あり、安全面が行き届いた安心の住環境◎ファミリーにぴったりな落ち着いた雰囲気の街並みです。ぜひ周辺環境もふまえてご覧ください☆お客様が満足できる物件が見つかるまで全力でサポートさせて頂きます☆ / 国土法届出:不要
《建築確認番号》:第HPA-25-13603-1号
※詳細については、Webサイトにてご確認ください。現状と異なる場合は、現状を優先させていただきます。
※取引態様の欄に「媒介」と表示された物件は「仲介物件」です。ご成約の際には仲介手数料を申し受けます。
情報更新日|2026年2月20日
次回更新予定|2026年3月17日