6,999万円
3SLDK
種別 戸建て
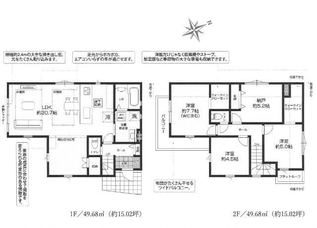
建物面積 99.36㎡(壁芯)
おすすめ
ポイント
こだわりの新築戸建!高い住宅性能と、暮らしを彩る充実の機能★
LDK広々20帖超!家族団らんにぴったりな開放感のある空間♪
リビングの一部は、家族の成長に合わせて間仕切り対応も可能◎
2WIC+納戸付き☆収納豊富でお部屋がすっきり整います♪
| 築年月 | 2026年4月 |
|---|---|
| 構造 | 木造 |
| 階数 | 2階建て |
| 土地面積 | 99.74㎡ (30.17坪) |
| 駐車スペース | 駐車場あり( 1台) |
| 都市計画 | 市街化区域 |
| 用途地域 | 第一種低層住居専用地域 |
| 建蔽率/容積率 | 50% / 100% |
| 地目 | 宅地 |
| 区画整理 | - |
| 接道 | 南東側5.0m公道に接道/南西側3.9m公道に接道 |
| 私道 | なし |
| 権利 | 所有権 |
| 借地権 | - |
| 現況 | 未完成 |
| 引渡時期 | 相談 |
| 引渡条件 | 相談 |
| 取引態様 | 媒介 |
| 管理コード | HF402943 |
設備・特記
《設備》:陽当り良好/上水道/南道路/小学校徒歩10分以内/下水道/クローゼット/浴室暖房/浴室乾燥機/LDK20畳以上/バルコニー/LDK18畳以上/南面バルコニー/都市ガス/LDK15畳以上/閑静な住宅街/納戸/浄水器/トイレ2ヶ所/温水洗浄便座/食器洗浄乾燥機/床下収納/ウォークインクローゼット/全居室フローリング/TVモニター付きインターホン/角地
《物件の特徴》:こだわりの新築戸建!高い住宅性能と、暮らしを彩る充実の機能★
備考
《その他》:販売戸数:1戸 / 備考:高い利便性と穏やかな住環境が調和した、暮らしやすい街並みが魅力。バス便利用で「本八幡」駅周辺エリアへのアクセスも快適です◎物件の周りは閑静な住宅街で、小学校まで徒歩2分とお子様の通学も安心ですね♪ぜひ周辺環境もふまえてご覧ください☆彡 / 国土法届出:不要
《建築確認番号》:第25UDI1W建10070号
※詳細については、Webサイトにてご確認ください。現状と異なる場合は、現状を優先させていただきます。
※取引態様の欄に「媒介」と表示された物件は「仲介物件」です。ご成約の際には仲介手数料を申し受けます。
情報更新日|2026年2月20日
次回更新予定|2026年3月14日