4,380万円
2SLDK
種別 戸建て
建物面積 80.89㎡(壁芯)
おすすめ
ポイント
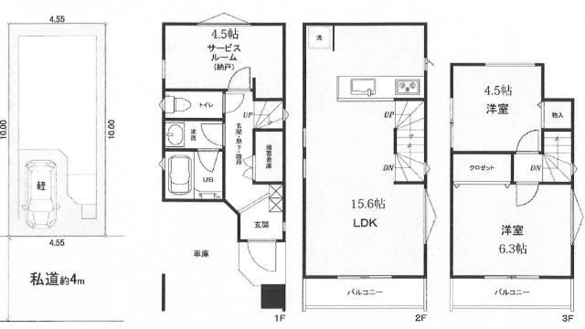
収納充実!全部屋収納完備◎1Fには備蓄倉庫もあり災害時も安心♪
LDK15帖と広く、ご家族でのだんらんもゆとりある空間です◎
浴室乾燥機付きで雨の日のお洗濯物も乾いて便利!カビ防止にも☆
南側道路につき、日当り・風通良好です♪2面バルコニーで解放感♪
| 築年月 | 2026年4月 |
|---|---|
| 構造 | 木造 |
| 階数 | 3階建て |
| 土地面積 | 45.50㎡ (13.76坪) |
| 駐車スペース | 駐車場あり( 1台) |
| 都市計画 | 市街化区域 |
| 用途地域 | 第一種住居地域 |
| 建蔽率/容積率 | 70% / 160% |
| 地目 | 宅地 |
| 区画整理 | - |
| 接道 | 南側4.0m私道に接道 |
| 私道 | 私道負担面積:9.1㎡ |
| 権利 | 所有権 |
| 借地権 | - |
| 現況 | 未完成 |
| 引渡時期 | 相談 |
| 引渡条件 | |
| 取引態様 | 媒介 |
| 管理コード | HF402977 |
設備・特記
《設備》:陽当り良好/都市ガス/上水道/南道路/整形地/南向き/LDK15畳以上/小学校徒歩10分以内/複層ガラス/下水道/カウンターキッチン/クローゼット/納戸/浄水器/全居室収納/温水洗浄便座/食器洗浄乾燥機/システムキッチン/3口コンロ/浴室乾燥機/24時間換気システム/バルコニー2面以上
《物件の特徴》:-
備考
《その他》:販売戸数:1戸 / 備考:都営新宿線「篠崎」駅より徒歩19分の閑静な住宅街にある新築戸建!サービスルームは用途に合わせて使用できます☆小・中学校も徒歩10分圏内でお子様の通学も安心です!子育て環境良好☆お客様が満足できる物件が見つかるまで全力でサポートさせていただきます☆ / 国土法届出:不要
《建築確認番号》:第25UDI1T建02515
※詳細については、Webサイトにてご確認ください。現状と異なる場合は、現状を優先させていただきます。
※取引態様の欄に「媒介」と表示された物件は「仲介物件」です。ご成約の際には仲介手数料を申し受けます。
情報更新日|2026年4月16日
次回更新予定|2026年5月8日