6,790万円
3LDK
種別 戸建て
建物面積 82.80㎡(壁芯)
おすすめ
ポイント
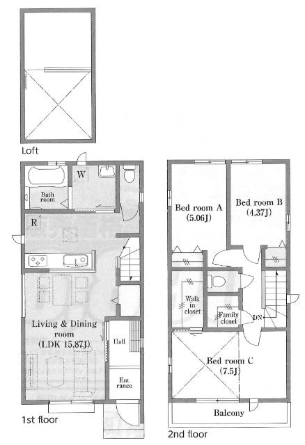
南に面した明るいお部屋で家族団欒時間を過ごすことができますね♪
充実の収納完備◎あると嬉しいファミリークローゼット付きです☆
リビングイン階段はご家族同士顔をあわせるきっかけになりますね♪
ご家族の顔が見える対面キッチンはお料理中も会話を楽しめますね☆
| 築年月 | 2026年4月 |
|---|---|
| 構造 | 木造 |
| 階数 | 2階建て |
| 土地面積 | 83.07㎡ (25.12坪) |
| 駐車スペース | 駐車場あり( 1台) |
| 都市計画 | 市街化区域 |
| 用途地域 | 第一種低層住居専用地域 |
| 建蔽率/容積率 | 50% / 100% |
| 地目 | 宅地 |
| 区画整理 | - |
| 接道 | |
| 私道 | なし |
| 権利 | 所有権 |
| 借地権 | - |
| 現況 | 未着工 |
| 引渡時期 | 相談 |
| 引渡条件 | |
| 取引態様 | 媒介 |
| 管理コード | HF403005 |
設備・特記
《設備》:陽当り良好/上水道/小学校徒歩10分以内/下水道/複層ガラス/カウンターキッチン/クローゼット/システムキッチン/追い焚き風呂/3口コンロ/浴室乾燥機/バルコニー/24時間換気システム/ワイドバルコニー/南面バルコニー/都市ガス/整形地/南向き/LDK15畳以上/閑静な住宅街/2面採光/浄水器/全居室収納/トイレ2ヶ所/温水洗浄便座/グルニエ/ウォークインクローゼット/全居室フローリング/TVモニター付きインターホン
《物件の特徴》:南に面した明るいお部屋で家族団欒時間を過ごすことができますね♪
備考
《その他》:販売戸数:1戸 / 備考:京葉線「舞浜駅」徒歩圏内◎商業施設や大型テーマパーク近く日々のお買い物がしやすく休日のおでかけも楽しめますね!陽当たりの良い明るい住環境をぜひご見学下さい!お問い合わせお待ちしております。☆お客様が満足できる物件が見つかるまで全力でサポートさせて頂きます☆ / 国土法届出:不要
《建築確認番号》:第HPA-26-00501-1号
※詳細については、Webサイトにてご確認ください。現状と異なる場合は、現状を優先させていただきます。
※取引態様の欄に「媒介」と表示された物件は「仲介物件」です。ご成約の際には仲介手数料を申し受けます。
情報更新日|2026年4月29日
次回更新予定|2026年5月13日