4,594万円
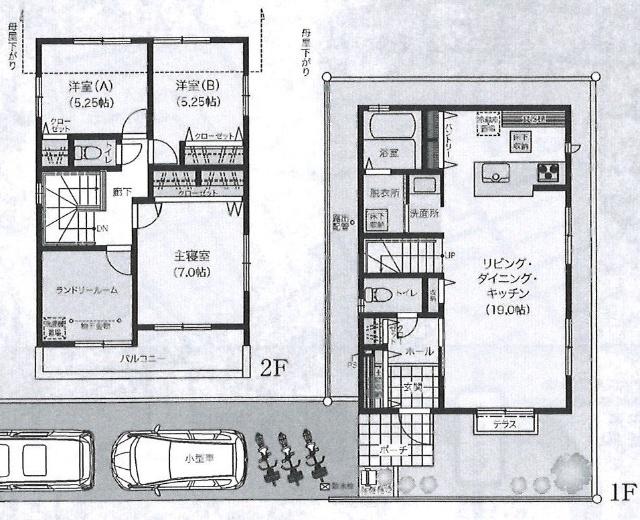
3LDK
種別 戸建て
建物面積 100.59㎡(壁芯)
おすすめ
ポイント
ランドリールームが2階に!部屋干しも外干しも動線バッチリ☆彡
広い19帖のLDK!ご家族やお友達とホームパーティーできます♪
全居室嬉しい収納完備!床下収納は2つもあり、玄関にも土間収納☆
お車2台分カースペースにつき、来客時など利用でき便利です◎
| 築年月 | 2025年9月 |
|---|---|
| 構造 | 木造 |
| 階数 | 2階建て |
| 土地面積 | 124.82㎡ (37.75坪) |
| 駐車スペース | 駐車場あり( 2台) |
| 都市計画 | 市街化区域 |
| 用途地域 | 第一種低層住居専用地域 |
| 建蔽率/容積率 | 50% / 100% |
| 地目 | 宅地 |
| 区画整理 | - |
| 接道 | 西側5.0m公道に接道 |
| 私道 | なし |
| 権利 | 所有権 |
| 借地権 | - |
| 現況 | 未完成 |
| 引渡時期 | 相談 |
| 引渡条件 | |
| 取引態様 | 媒介 |
| 管理コード | HF403052 |
設備・特記
《設備》:陽当り良好/上水道/下水道/カウンターキッチン/浴室暖房/テラス/システムキッチン/オートバス/追い焚き風呂/3口コンロ/浴室乾燥機/バルコニー/LDK18畳以上/24時間換気システム/駐車場2台分/南面バルコニー/都市ガス/南向き/浄水器/全居室収納/トイレ2ヶ所/温水洗浄便座/洗髪洗面化粧台/食器洗浄乾燥機/床下収納/シューズインクローゼット/バス1坪以上/全居室フローリング
《物件の特徴》:-
備考
《その他》:販売戸数:1戸 / 備考:京成電鉄松戸線「五香」駅徒歩7分の駅近新築戸建!通勤・通学も利便性◎コンビニ・スーパーも近く、商業施設も付近にあるので週末のお出かけも楽々便利☆彡周辺環境良好♪お客様が満足できる物件が見つかるまで全力でサポートさせていただきます☆彡 / 国土法届出:不要
《建築確認番号》:第R07FHC103176号
※詳細については、Webサイトにてご確認ください。現状と異なる場合は、現状を優先させていただきます。
※取引態様の欄に「媒介」と表示された物件は「仲介物件」です。ご成約の際には仲介手数料を申し受けます。
情報更新日|2026年1月31日
次回更新予定|2026年2月16日