6,498万円
3LDK
種別 戸建て
建物面積 116.75㎡(壁芯)
おすすめ
ポイント
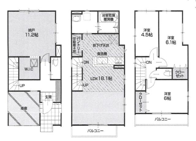
ガレージから直接家に入れるので雨天時も服やお荷物が濡れません♪
1階には11帖の大型納戸があり、更にWICと床下収納で大容量☆
2階リビングで日中生活音が気になりにくく18帖以上の広々空間◎
2面バルコニーは南向きにつき、風通し陽当り良好で過ごしやすい!
| 築年月 | 2026年1月 |
|---|---|
| 構造 | 木造 |
| 階数 | 3階建て |
| 土地面積 | 76.08㎡ (23.01坪) |
| 駐車スペース | 駐車場あり( 1台) |
| 都市計画 | 市街化区域 |
| 用途地域 | 第一種住居地域 |
| 建蔽率/容積率 | 70% / 218% |
| 地目 | 宅地 |
| 区画整理 | - |
| 接道 | 南西側5.4m公道に接道 |
| 私道 | なし |
| 権利 | 所有権 |
| 借地権 | - |
| 現況 | 空室(入居歴無) |
| 引渡時期 | 相談 |
| 引渡条件 | |
| 取引態様 | 媒介 |
| 管理コード | HF403064 |
設備・特記
《設備》:陽当り良好/上水道/南道路/小学校徒歩10分以内/下水道/カウンターキッチン/クローゼット/浴室暖房/システムキッチン/追い焚き風呂/3口コンロ/浴室乾燥機/バルコニー/LDK18畳以上/24時間換気システム/バルコニー2面以上/ビルトインガレージ/南面バルコニー/都市ガス/南向き/閑静な住宅街/パントリー/納戸/浄水器/温水洗浄便座/食器洗浄乾燥機/床下収納/ウォークインクローゼット/全居室フローリング/TVモニター付きインターホン
《物件の特徴》:ガレージから直接家に入れるので雨天時も服やお荷物が濡れません♪
備考
《その他》:販売戸数:1戸 / 備考:都営地下鉄新宿線「船橋」駅より徒歩28分の閑静な住宅街にある3LDK+1Sの新築戸建!小学校徒歩10分と近く、お子様の通学も安心◎コンビニ徒歩6分、スーパー徒歩9分と周辺環境良好です☆お客様が満足できる物件が見つかるまで全力でサポートさせていただきます♪ / 国土法届出:不要
《建築確認番号》:第25UDI1W建03988号
※詳細については、Webサイトにてご確認ください。現状と異なる場合は、現状を優先させていただきます。
※取引態様の欄に「媒介」と表示された物件は「仲介物件」です。ご成約の際には仲介手数料を申し受けます。
情報更新日|2026年2月2日
次回更新予定|2026年2月19日