3,998万円
4LDK
種別 戸建て
建物面積 100.81㎡(壁芯)
おすすめ
ポイント
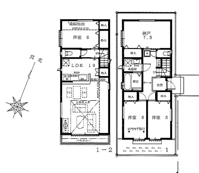
2階19帖のLDK!バルコニーに面しており通風・採光良好です♪
人気の対面キッチンを採用◎開放感があり配膳や後片付けも楽々♪
全ての部屋に収納があり、ご家族のお荷物がスッキリ片付きます♪
キッチンには食洗器がついているので後片付けも楽々です◎
| 築年月 | 2026年3月 |
|---|---|
| 構造 | 木造 |
| 階数 | 2階建て |
| 土地面積 | 117.23㎡ (35.46坪) |
| 駐車スペース | 駐車場あり( 1台) |
| 都市計画 | 市街化区域 |
| 用途地域 | 第一種中高層住居専用地域 |
| 建蔽率/容積率 | 60% / 200% |
| 地目 | 宅地 |
| 区画整理 | - |
| 接道 | 南東側に接道 |
| 私道 | なし |
| 権利 | 所有権 |
| 借地権 | - |
| 現況 | 未完成 |
| 引渡時期 | 相談 |
| 引渡条件 | |
| 取引態様 | 媒介 |
| 管理コード | HF403065 |
設備・特記
《設備》:陽当り良好/都市ガス/上水道/前道6m以上/下水道/カウンターキッチン/クローゼット/全居室収納/トイレ2ヶ所/温水洗浄便座/システムキッチン/床下収納/3口コンロ/バルコニー/LDK18畳以上/全居室フローリング
《物件の特徴》:2階19帖のLDK!バルコニーに面しており通風・採光良好です♪
備考
《その他》:販売戸数:1戸 / 備考:東葉高速鉄道「船橋日大前」・京成電鉄松戸線「習志野」駅18分!JR津田沼駅もバスで利用可!周辺にはスーパー・コンビニがあり、毎日のお買い物に便利!小学校徒歩10分圏内でお子さまの通学も安心☆お客様が満足できる物件が見つかるまで全力でサポートさせて頂きます☆ / 国土法届出:不要
《建築確認番号》:第000号
※詳細については、Webサイトにてご確認ください。現状と異なる場合は、現状を優先させていただきます。
※取引態様の欄に「媒介」と表示された物件は「仲介物件」です。ご成約の際には仲介手数料を申し受けます。
情報更新日|2026年5月6日
次回更新予定|2026年5月31日