4,980万円
4LDK
種別 戸建て
建物面積 97.40㎡(壁芯)
おすすめ
ポイント
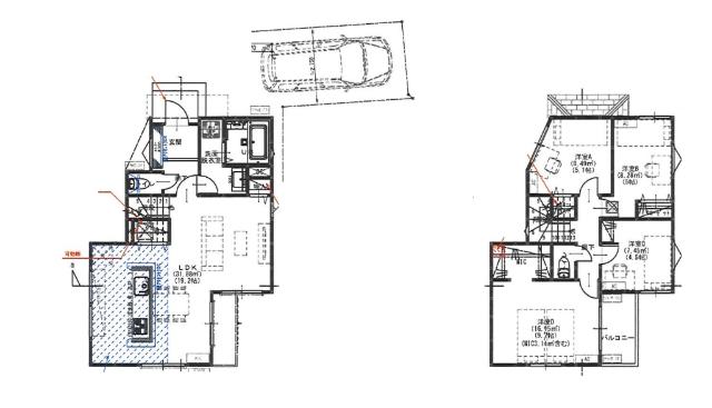
ご家族それぞれの空間が確保しやすいLDK+4部屋の間取りです♪
ゆとりある19帖以上のLDKで素敵な家族団欒時間が過ごせます☆
WIC等収納充実◎衣類や家電等すっきり片付きお掃除もしやすい♪
ご家族が顔を合わせるきっかけにも繋がるリビングイン階段を採用☆
| 築年月 | 2026年2月 |
|---|---|
| 構造 | 木造 |
| 階数 | 2階建て |
| 土地面積 | 120.00㎡ (36.29坪) |
| 駐車スペース | 駐車場あり( 1台) |
| 都市計画 | 市街化区域 |
| 用途地域 | 第一種低層住居専用地域 |
| 建蔽率/容積率 | 50% / 100% |
| 地目 | 宅地 |
| 区画整理 | - |
| 接道 | 北東側4.5m私道に接道 |
| 私道 | なし |
| 権利 | 所有権 |
| 借地権 | - |
| 現況 | 未完成 |
| 引渡時期 | 相談 |
| 引渡条件 | |
| 取引態様 | 媒介 |
| 管理コード | HF403066 |
設備・特記
《設備》:陽当り良好/上水道/小学校徒歩10分以内/下水道/開発分譲地内/複層ガラス/カウンターキッチン/クローゼット/システムキッチン/オートバス/追い焚き風呂/3口コンロ/バルコニー/24時間換気システム/照明器具/LDK18畳以上/南面バルコニー/都市ガス/南向き/閑静な住宅街/2面採光/浄水器/トイレ2ヶ所/温水洗浄便座/床下収納/全居室フローリング/TVモニター付きインターホン
《物件の特徴》:ご家族それぞれの空間が確保しやすいLDK+4部屋の間取りです♪
備考
《その他》:販売戸数:1戸 / 備考:アーバンパークライン「塚田駅」まで徒歩12分!小学校徒歩10分圏内で子育て世帯に嬉しい住環境です!スーパー、コンビニ近く日々のお買い物もしやすく安心ですね!お問い合わせお待ちしております!☆お客様が満足できる物件が見つかるまで全力でサポートさせて頂きます☆ / 国土法届出:不要
《建築確認番号》:第KBI-YKH25-10-2794号
※詳細については、Webサイトにてご確認ください。現状と異なる場合は、現状を優先させていただきます。
※取引態様の欄に「媒介」と表示された物件は「仲介物件」です。ご成約の際には仲介手数料を申し受けます。
情報更新日|2026年2月2日
次回更新予定|2026年2月17日