7,398万円
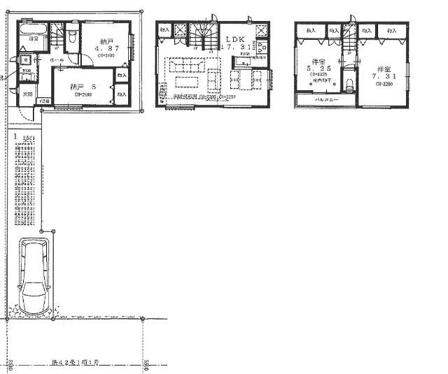
4LDK
種別 戸建て
建物面積 95.74㎡(壁芯)
おすすめ
ポイント
LDK17帖でゆとりある空間!ご家族でゆったりくつろげます☆彡
L字の3口スシテムキッチンは動線がスムーズで調理しやすい♪
全居室収納完備☆リビングにもあるので書類などスッキリします◎
4部屋あるので人数の多いご家庭や趣味・書斎部屋など用途様々☆彡
| 築年月 | 2026年4月 |
|---|---|
| 構造 | 木造 |
| 階数 | 3階建て |
| 土地面積 | 75.16㎡ (22.73坪) |
| 駐車スペース | 駐車場あり( 1台) |
| 都市計画 | 市街化区域 |
| 用途地域 | 第一種住居地域 |
| 建蔽率/容積率 | 70% / 300% |
| 地目 | 宅地 |
| 区画整理 | - |
| 接道 | 南東側5.5mに接道 |
| 私道 | なし |
| 権利 | 所有権 |
| 借地権 | - |
| 現況 | 未完成 |
| 引渡時期 | 相談 |
| 引渡条件 | |
| 取引態様 | 媒介 |
| 管理コード | HF403067 |
設備・特記
《設備》:陽当り良好/都市ガス/上水道/南道路/南向き/LDK15畳以上/小学校徒歩10分以内/複層ガラス/下水道/カウンターキッチン/納戸/浄水器/全居室収納/トイレ2ヶ所/洗髪洗面化粧台/システムキッチン/3口コンロ/浴室乾燥機/バルコニー/24時間換気システム/全居室フローリング/南面バルコニー
《物件の特徴》:-
備考
《その他》:販売戸数:1戸 / 備考:JR総武線「小岩」駅より徒歩9分、京成本線「京成小岩」駅徒歩7分の駅近10分圏内の新築3階建!スーパー・コンビニ徒歩5分!小学校・中学校・ドラッグストア徒歩10分で周辺環境良好です◎お客様が満足できる物件が見つかるまで全力でサポートさせていただきます☆彡 / 国土法届出:不要
《建築確認番号》:第0000号
※詳細については、Webサイトにてご確認ください。現状と異なる場合は、現状を優先させていただきます。
※取引態様の欄に「媒介」と表示された物件は「仲介物件」です。ご成約の際には仲介手数料を申し受けます。
情報更新日|2026年5月6日
次回更新予定|2026年5月25日