4,380万円
4LDK
種別 戸建て
建物面積 105.40㎡(壁芯)
おすすめ
ポイント
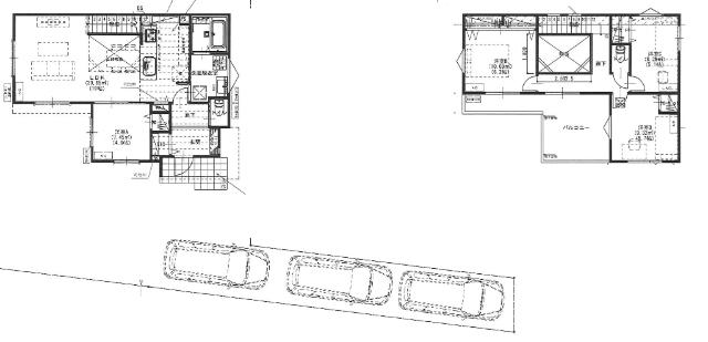
ご家族のライフスタイルにあわせて活用がしやすいLDK+4部屋♪
19帖のゆとりあるLDKは上部吹抜で開放感溢れる住空間ですよ☆
適材適所に収納あり◎お部屋がすっきりと片付いて家具配置も楽々♪
子育て世帯にも人気のリビングが見渡せる対面式キッチンを採用☆
| 築年月 | 2026年4月 |
|---|---|
| 構造 | 木造 |
| 階数 | 2階建て |
| 土地面積 | 200.22㎡ (60.56坪) |
| 駐車スペース | 駐車場あり( 1台) |
| 都市計画 | 市街化区域 |
| 用途地域 | 第一種低層住居専用地域 |
| 建蔽率/容積率 | 50% / 100% |
| 地目 | 宅地 |
| 区画整理 | - |
| 接道 | 北側6.0m公道に接道 |
| 私道 | なし |
| 権利 | 所有権 |
| 借地権 | - |
| 現況 | 未完成 |
| 引渡時期 | 相談 |
| 引渡条件 | |
| 取引態様 | 媒介 |
| 管理コード | HF403075 |
設備・特記
《設備》:陽当り良好/上水道/前道6m以上/小学校徒歩10分以内/複層ガラス/下水道/カウンターキッチン/クローゼット/システムキッチン/オートバス/追い焚き風呂/3口コンロ/バルコニー/照明器具/LDK18畳以上/24時間換気システム/駐車場2台分/駐車場3台分/ワイドバルコニー/南面バルコニー/都市ガス/閑静な住宅街/2面採光/浄水器/全居室収納/温水洗浄便座/床下収納/シューズインクローゼット/全居室フローリング
《物件の特徴》:ご家族のライフスタイルにあわせて活用がしやすいLDK+4部屋♪
備考
《その他》:販売戸数:1戸 / 備考:「馬橋駅」徒歩15分!小・中学校徒歩10分圏内でお子様の通学も安心して送り出す事ができますね!お買い物しやすいスーパー、コンビニ徒歩圏内!ぜひご見学下さい!お問い合わせお待ちしております!☆お客様が満足できる物件が見つかるまで全力でサポートさせて頂きます☆ / 国土法届出:不要
《建築確認番号》:第KBI-YKH25-10-2310号
※詳細については、Webサイトにてご確認ください。現状と異なる場合は、現状を優先させていただきます。
※取引態様の欄に「媒介」と表示された物件は「仲介物件」です。ご成約の際には仲介手数料を申し受けます。
情報更新日|2026年2月3日
次回更新予定|2026年2月19日