7,090万円
4LDK
種別 戸建て
建物面積 113.69㎡(壁芯)
おすすめ
ポイント
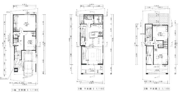
LDK18.8帖の大型リビング!南向きで風通し・陽当たり良好♪
2階リビングにつき、外からのプライバシーを確保できます◎
全室収納&ウォークインクローゼットでご家族の荷物スッキリ♪
ビルトインガレージで大切なお車を雨風汚れから守ります☆彡
| 築年月 | 2026年2月 |
|---|---|
| 構造 | 木造 |
| 階数 | 3階建て |
| 土地面積 | 70.01㎡ (21.17坪) |
| 駐車スペース | 駐車場あり( 1台) |
| 都市計画 | 市街化区域 |
| 用途地域 | 第一種中高層住居専用地域 |
| 建蔽率/容積率 | 60% / 150% |
| 地目 | 指定なし |
| 区画整理 | - |
| 接道 | 南側5.0m公道に接道/西側5.0m公道に接道 |
| 私道 | なし |
| 権利 | 所有権 |
| 借地権 | - |
| 現況 | 空室(入居歴無) |
| 引渡時期 | 相談 |
| 引渡条件 | |
| 取引態様 | 媒介 |
| 管理コード | HF403078 |
設備・特記
《設備》:陽当り良好/南道路/上水道/小学校徒歩10分以内/複層ガラス/下水道/カウンターキッチン/クローゼット/システムキッチン/オートバス/追い焚き風呂/3口コンロ/バルコニー/24時間換気システム/バルコニー2面以上/ビルトインガレージ/南面バルコニー/都市ガス/南向き/吹抜/LDK15畳以上/浄水器/全居室収納/トイレ2ヶ所/温水洗浄便座/洗髪洗面化粧台/食器洗浄乾燥機/シューズインクローゼット/ウォークインクローゼット/全居室フローリング/TVモニター付きインターホン
《物件の特徴》:LDK18.8帖の大型リビング!南向きで風通し・陽当たり良好♪
備考
《その他》:販売戸数:1戸 / 備考:都営新宿線「篠崎」駅より徒歩11分の駅近物件!スーパー・コンビニ・ドラッグストアが徒歩10分圏内なので毎日のお買い物が便利です◎小学校・中学校中学校徒歩15分圏内☆子育て環境良好です!お客様が満足できる物件が見つかるまで全力でサポートさせていただきます♪ / 国土法届出:不要
《建築確認番号》:第BNV確済25-576号
※詳細については、Webサイトにてご確認ください。現状と異なる場合は、現状を優先させていただきます。
※取引態様の欄に「媒介」と表示された物件は「仲介物件」です。ご成約の際には仲介手数料を申し受けます。
情報更新日|2026年4月29日
次回更新予定|2026年5月20日