4,380万円
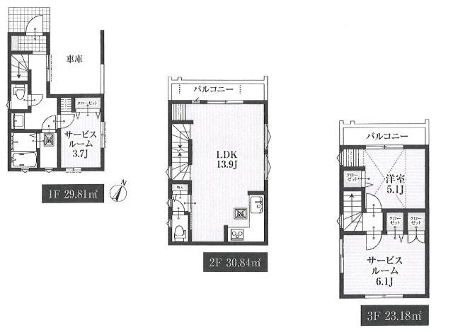
3SLDK
種別 戸建て
建物面積 83.83㎡(壁芯)
おすすめ
ポイント
暮らしやすさと快適性を追求した、こだわりの新築戸建★
完成済み物件につき、より暮らしのイメージが湧いてきますね◎
全居室に収納を完備!キレイを保てる工夫がつまっています☆
ビルトインガレージ付きで、大切な愛車を守れます♪
| 築年月 | 2025年12月 |
|---|---|
| 構造 | 木造 |
| 階数 | 3階建て |
| 土地面積 | 46.54㎡ (14.07坪) |
| 駐車スペース | 駐車場あり( 1台) |
| 都市計画 | 市街化区域 |
| 用途地域 | 第一種住居地域 |
| 建蔽率/容積率 | 60% / 200% |
| 地目 | 宅地 |
| 区画整理 | - |
| 接道 | 北側6.0m公道に5.5m接道 |
| 私道 | なし |
| 権利 | 所有権 |
| 借地権 | - |
| 現況 | 空室(入居歴無) |
| 引渡時期 | 相談 |
| 引渡条件 | 相談 |
| 取引態様 | 媒介 |
| 管理コード | HF403100 |
設備・特記
《設備》:都市ガス/上水道/前道6m以上/閑静な住宅街/小学校徒歩10分以内/複層ガラス/下水道/クローゼット/全居室収納/トイレ2ヶ所/洗髪洗面化粧台/システムキッチン/浴室乾燥機/バルコニー/24時間換気システム/全居室フローリング/TVモニター付きインターホン/ビルトインガレージ
《物件の特徴》:暮らしやすさと快適性を追求した、こだわりの新築戸建★
備考
《その他》:販売戸数:1戸 / 備考:都心部へのアクセスも快適な東西線沿線!「行徳」駅徒歩9分◎駅周辺の商業施設も利用しやすく便利な好立地♪駅チカながら、物件周辺は落ち着いた雰囲気の住宅街。小学校も徒歩10分以内と、バランスの良い街並みです!ぜひ周辺環境もふまえてご覧ください☆彡 / 地勢:平坦 / 国土法届出:不要
《建築確認番号》:第KSI25-3120-50129号
※詳細については、Webサイトにてご確認ください。現状と異なる場合は、現状を優先させていただきます。
※取引態様の欄に「媒介」と表示された物件は「仲介物件」です。ご成約の際には仲介手数料を申し受けます。
情報更新日|2026年2月7日
次回更新予定|2026年2月24日