3,090万円
3LDK
種別 戸建て
建物面積 96.05㎡(壁芯)
おすすめ
ポイント
こだわりの新築戸建★快適な暮らしを彩る機能が充実♪
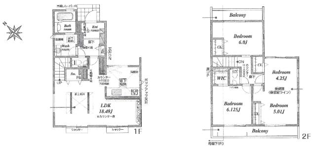
LDK18帖超!家族団らんにぴったりな開放感のある空間です◎
2階の洋室は、ライフスタイルの変化に合わせて間仕切り対応可能!
全居室収納あり!さらにWICや床下収納・可動棚なども完備☆彡
| 築年月 | 2026年2月 |
|---|---|
| 構造 | 木造 |
| 階数 | 2階建て |
| 土地面積 | 99.05㎡ (29.96坪) |
| 駐車スペース | 駐車場あり( 1台) |
| 都市計画 | 市街化区域 |
| 用途地域 | 第一種低層住居専用地域 |
| 建蔽率/容積率 | 50% / 100% |
| 地目 | 宅地 |
| 区画整理 | - |
| 接道 | 北東側4.0m私道に接道 |
| 私道 | 私道負担面積:16.33㎡(持分:1/1) |
| 権利 | 所有権 |
| 借地権 | - |
| 現況 | 未完成 |
| 引渡時期 | 相談 |
| 引渡条件 | 相談 |
| 取引態様 | 媒介 |
| 管理コード | HF403116 |
設備・特記
《設備》:都市ガス/上水道/LDK15畳以上/閑静な住宅街/小学校徒歩10分以内/複層ガラス/下水道/カウンターキッチン/クローゼット/浄水器/トイレ2ヶ所/洗髪洗面化粧台/食器洗浄乾燥機/床下収納/浴室乾燥機/ウォークインクローゼット/バルコニー/LDK18畳以上/全居室フローリング/TVモニター付きインターホン/バルコニー2面以上/南面バルコニー
《物件の特徴》:こだわりの新築戸建★快適な暮らしを彩る機能が充実♪
備考
《その他》:販売戸数:1戸 / 備考:落ち着いた雰囲気が魅力のエリア◎物件周辺には教育施設や公園が複数あり、安全面が行き届いた安心の住環境!ファミリーにぴったりな暮らしやすい街並みです。ぜひご覧ください☆お客様が満足できる物件が見つかるまで全力でサポートさせて頂きます☆ / 国土法届出:不要
《建築確認番号》:第R07SHC120802号
※詳細については、Webサイトにてご確認ください。現状と異なる場合は、現状を優先させていただきます。
※取引態様の欄に「媒介」と表示された物件は「仲介物件」です。ご成約の際には仲介手数料を申し受けます。
情報更新日|2026年3月27日
次回更新予定|2026年4月11日