6,690万円
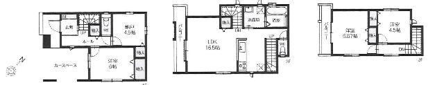
3SLDK
種別 戸建て
建物面積 97.29㎡(壁芯)
おすすめ
ポイント
こだわりの新築戸建★高い住宅性能と充実の仕様で快適な生活を♪
ライフスタイルに合わせて活用できる3LDK+納戸の間取り★
LDK16帖超!2階部分につき日当たりも良好な広々空間です◎
安心のビルトインガレージ付きで大切な愛車を守れます♪
| 築年月 | 2026年5月 |
|---|---|
| 構造 | 木造 |
| 階数 | 3階建て |
| 土地面積 | 70.98㎡ (21.47坪) |
| 駐車スペース | 駐車場あり( 1台) |
| 都市計画 | 市街化区域 |
| 用途地域 | 第一種中高層住居専用地域 |
| 建蔽率/容積率 | 60% / 150% |
| 地目 | 宅地 |
| 区画整理 | - |
| 接道 | 西側4.0m私道に接道 |
| 私道 | なし |
| 権利 | 所有権 |
| 借地権 | - |
| 現況 | 未完成 |
| 引渡時期 | 相談 |
| 引渡条件 | 相談 |
| 取引態様 | 媒介 |
| 管理コード | HF403141 |
設備・特記
《設備》:都市ガス/上水道/LDK15畳以上/閑静な住宅街/小学校徒歩10分以内/複層ガラス/下水道/クローゼット/納戸/全居室収納/トイレ2ヶ所/温水洗浄便座/食器洗浄乾燥機/システムキッチン/浴室乾燥機/バス1坪以上/バルコニー/24時間換気システム/全居室フローリング/TVモニター付きインターホン/南面バルコニー
《物件の特徴》:こだわりの新築戸建★高い住宅性能と充実の仕様で快適な生活を♪
備考
《その他》:販売戸数:1戸 / 備考:都営新宿線「瑞江」駅徒歩圏内◎物件周辺は教育施設や公園が複数あり、安全面が行き届いた安心の街並みです♪都市近郊ながら、穏やかな暮らしが叶います★ぜひ周辺環境もふまえてご覧ください☆お客様が満足できる物件が見つかるまで全力でサポートさせて頂きます☆ / 国土法届出:不要
《建築確認番号》:第HPA-25-15058-1号
※詳細については、Webサイトにてご確認ください。現状と異なる場合は、現状を優先させていただきます。
※取引態様の欄に「媒介」と表示された物件は「仲介物件」です。ご成約の際には仲介手数料を申し受けます。
情報更新日|2026年3月27日
次回更新予定|2026年4月16日