6,980万円
3SLDK
種別 戸建て
建物面積 104.33㎡(壁芯)
おすすめ
ポイント
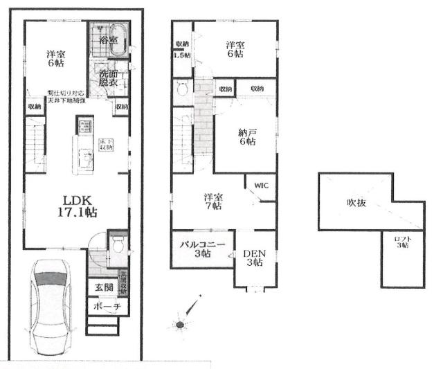
2018年築!ゆとりある2階建て×3SLDKの間取り☆彡
リビングを中央においたプラン★家族の絆もグッと深まります♪
ライフスタイルに合わせてマルチに使えるロフト&DEN付き◎
南向きで採光良好☆彡明るく開放感あふれる住まいです!
| 築年月 | 2018年10月 |
|---|---|
| 構造 | 木造 |
| 階数 | 2階建て |
| 土地面積 | 99.19㎡ (30.00坪) |
| 駐車スペース | 駐車場あり( 1台) |
| 都市計画 | 市街化区域 |
| 用途地域 | 第一種住居地域 |
| 建蔽率/容積率 | 60% / 300% |
| 地目 | 宅地 |
| 区画整理 | - |
| 接道 | 南東側4.5m公道に5.8m接道 |
| 私道 | なし |
| 権利 | 所有権 |
| 借地権 | - |
| 現況 | 空室(入居歴有) |
| 引渡時期 | 相談 |
| 引渡条件 | 相談 |
| 取引態様 | 媒介 |
| 管理コード | HF403203 |
設備・特記
《設備》:陽当り良好/上水道/南道路/小学校徒歩10分以内/下水道/クローゼット/アイランドキッチン/浴室暖房/システムキッチン/追い焚き風呂/3口コンロ/浴室乾燥機/バルコニー/南面バルコニー/南向き/LDK15畳以上/閑静な住宅街/納戸/浄水器/全居室収納/トイレ2ヶ所/温水洗浄便座/洗髪洗面化粧台/食器洗浄乾燥機/床下収納/バス1坪以上/ウォークインクローゼット/全居室フローリング/TVモニター付きインターホン
《物件の特徴》:2018年築!ゆとりある2階建て×3SLDKの間取り☆彡
備考
《その他》:販売戸数:1戸 / 備考:都営新宿線「瑞江」駅徒歩10分!そのほか、「篠崎」駅も徒歩圏内◎暮らしにゆとりをもたらす駅チカ物件★物件周辺は落ち着いた雰囲気の住宅街で、小・中学校いずれも徒歩10分以内!都市近郊ながら穏やかな暮らしが叶います☆彡ぜひ周辺環境もふまえてご覧ください! / 国土法届出:不要
※詳細については、Webサイトにてご確認ください。現状と異なる場合は、現状を優先させていただきます。
※取引態様の欄に「媒介」と表示された物件は「仲介物件」です。ご成約の際には仲介手数料を申し受けます。
情報更新日|2026年2月24日
次回更新予定|2026年3月15日