3,098万円
3LDK
種別 戸建て
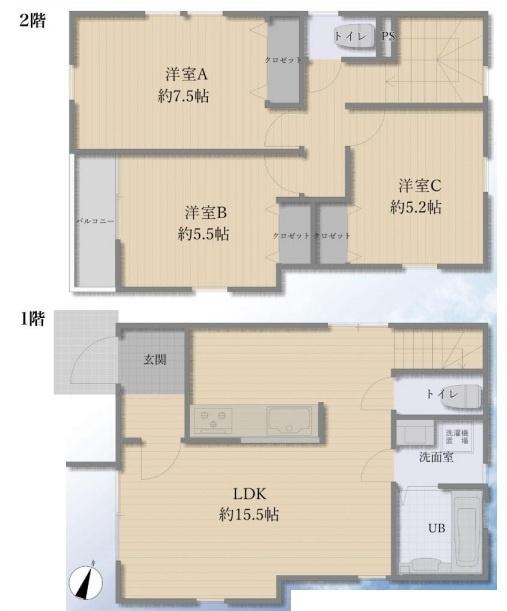
建物面積 78.24㎡(壁芯)
おすすめ
ポイント
2024年築の未入居物件で新生活を送りませんか?採光・通風良好
各居室に収納があるので、スッキリとした住空間を叶えます!
開放的で居心地の良い空間には、自然と家族が集まります♪
水廻りがまとまった家事導線の良い間取りは家事の時短も叶います☆
| 築年月 | 2024年10月 |
|---|---|
| 構造 | 木造 |
| 階数 | 2階建て |
| 土地面積 | 92.19㎡ (27.88坪) |
| 駐車スペース | 駐車場あり( 1台) |
| 都市計画 | 市街化区域 |
| 用途地域 | 第一種低層住居専用地域 |
| 建蔽率/容積率 | 50% / 100% |
| 地目 | 宅地 |
| 区画整理 | - |
| 接道 | 西側4.0m私道に接道 |
| 私道 | なし |
| 権利 | 所有権 |
| 借地権 | - |
| 現況 | 空室(入居歴無) |
| 引渡時期 | 相談 |
| 引渡条件 | 相談 |
| 取引態様 | 媒介 |
| 管理コード | HF403236 |
設備・特記
《設備》:陽当り良好/都市ガス/上水道/LDK15畳以上/閑静な住宅街/下水道/クローゼット/全居室収納/トイレ2ヶ所/温水洗浄便座/システムキッチン/オートバス/3口コンロ/追い焚き風呂/バルコニー/全居室フローリング
《物件の特徴》:2024年築の未入居物件で新生活を送りませんか?採光・通風良好!
備考
《その他》:販売戸数:1戸 / 備考:京成松戸線「高根公団」駅 徒歩9分の好立地!交通アクセスも良好なので、ご家族の通勤・通学にも便利ですね♪また駅周辺には生活利便施設が充実しているので、住環境も良好です◎★お客様が満足できる物件が見つかるまで、全力でサポートさせていただきます★ / 国土法届出:不要
※詳細については、Webサイトにてご確認ください。現状と異なる場合は、現状を優先させていただきます。
※取引態様の欄に「媒介」と表示された物件は「仲介物件」です。ご成約の際には仲介手数料を申し受けます。
情報更新日|2026年3月19日
次回更新予定|2026年4月12日