6,499万円
4LDK
種別 戸建て
建物面積 124.68㎡(壁芯)
おすすめ
ポイント
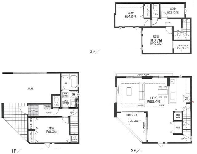
南西角地!陽当たり・通風良好な清潔感溢れる住空間で快適生活を♪
22帖以上の大空間LDK◎足元からあたたかい嬉しい床暖房つき☆
衣替えもしやすい大容量WIC等収納充実!すっきり片付きますね♪
リビングイン階段はご家族が顔をあわせるきっかけになりますね☆
| 築年月 | 2026年1月 |
|---|---|
| 構造 | 木造 |
| 階数 | 3階建て |
| 土地面積 | 71.28㎡ (21.56坪) |
| 駐車スペース | 駐車場あり( 1台) |
| 都市計画 | 市街化区域 |
| 用途地域 | 第一種中高層住居専用地域 |
| 建蔽率/容積率 | 80% / 150% |
| 地目 | 宅地 |
| 区画整理 | - |
| 接道 | 西側6.5m公道に接道/南側6.0m私道に接道 |
| 私道 | なし |
| 権利 | 所有権 |
| 借地権 | - |
| 現況 | 空室(入居歴無) |
| 引渡時期 | 相談 |
| 引渡条件 | |
| 取引態様 | 媒介 |
| 管理コード | HF403243 |
設備・特記
《設備》:陽当り良好/上水道/南道路/床暖房/小学校徒歩10分以内/複層ガラス/下水道/カウンターキッチン/クローゼット/浴室暖房/システムキッチン/オートバス/追い焚き風呂/3口コンロ/浴室乾燥機/LDK20畳以上/バルコニー/照明器具/24時間換気システム/バルコニー2面以上/南面バルコニー/都市ガス/南向き/2面採光/パントリー/浄水器/全居室収納/トイレ2ヶ所/温水洗浄便座/食器洗浄乾燥機/ウォークインクローゼット/全居室フローリング/角地
《物件の特徴》:南西角地!陽当たり・通風良好な清潔感溢れる住空間で快適生活を♪
備考
《その他》:販売戸数:1戸 / 備考:総武線沿線◎バス停徒歩3分!駅まではバスでのアクセスが便利!教育施設が徒歩10分圏内と子育て世帯に嬉しい住環境!南西角地×大空間LDKをぜひご見学ください!お問い合わせお待ちしております!☆お客様が満足できる物件が見つかるまで全力でサポートさせて頂きます☆ / 国土法届出:不要
《建築確認番号》:第KBI-YKH25-10-2617号
※詳細については、Webサイトにてご確認ください。現状と異なる場合は、現状を優先させていただきます。
※取引態様の欄に「媒介」と表示された物件は「仲介物件」です。ご成約の際には仲介手数料を申し受けます。
情報更新日|2026年3月5日
次回更新予定|2026年3月20日