4,740万円
4LDK
種別 戸建て
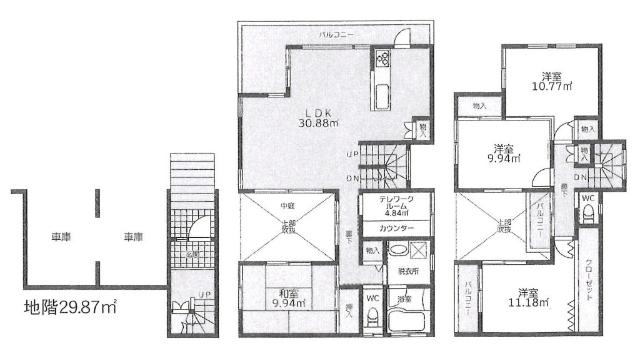
建物面積 141.70㎡(壁芯)
おすすめ
ポイント
お車2台分駐車可能!(車庫)来客時や2台持ちの方に嬉しい☆彡
全居室収納あり!パントリーや2階廊下にも収納豊富で助かります♪
吹抜けになっているので解放感溢れるリビングでくつろげます☆彡
2面バルコニーで風通し・陽当り良好です☆お洗濯物も乾きやすい♪
| 築年月 | 2023年5月 |
|---|---|
| 構造 | 木造 |
| 階数 | 2階建て |
| 土地面積 | 116.51㎡ (35.24坪) |
| 駐車スペース | 駐車場あり( 2台) |
| 都市計画 | 市街化区域 |
| 用途地域 | 第一種中高層住居専用地域 |
| 建蔽率/容積率 | 60% / 200% |
| 地目 | 宅地 |
| 区画整理 | - |
| 接道 | 北西側7.7m公道に接道 |
| 私道 | なし |
| 権利 | 所有権 |
| 借地権 | - |
| 現況 | 空室(入居歴無) |
| 引渡時期 | 相談 |
| 引渡条件 | |
| 取引態様 | 媒介 |
| 管理コード | HF403246 |
設備・特記
《設備》:陽当り良好/前道6m以上/南向き/吹抜/小学校徒歩10分以内/カウンターキッチン/クローゼット/浄水器/全居室収納/トイレ2ヶ所/温水洗浄便座/システムキッチン/オートバス/追い焚き風呂/3口コンロ/LDK20畳以上/バルコニー/駐車場2台分/南面バルコニー
《物件の特徴》:お車2台分駐車可能!(車庫)来客時や2台持ちの方に嬉しい☆彡
備考
《その他》:販売戸数:1戸 / 備考:京成松戸線「薬園台」駅より徒歩7分、「前原」駅より徒歩11分、JR総武線「津田沼」駅より徒歩20分の駅近物件!未入居なので綺麗です☆彡小学校・中学校も近くお子様の通学も安心です♪お客様が満足できる物件が見つかるまで全力でサポートさせていただきます☆彡 / 国土法届出:不要
《建築確認番号》:第21UDI1C建07022
※詳細については、Webサイトにてご確認ください。現状と異なる場合は、現状を優先させていただきます。
※取引態様の欄に「媒介」と表示された物件は「仲介物件」です。ご成約の際には仲介手数料を申し受けます。
情報更新日|2026年3月10日
次回更新予定|2026年3月25日